Discover Tengah Garden Residences, a premier mixed-use development by Hong Leong, CSC Land, and GuocoLand in Smart Forest Town, offering ‘Waterfront Garden Living For All’.
Tengah’s Defining Development Awaits Your VVIP Preview on 11 Apr 2026
Various Smart Layouts
Tengah MRT (U/C)
Lot One/ Hillion Mall
South View Primary
Smart, Green Living in Forest Town
Total Units
Est. Completion

Project Overview
Tengah Garden Avenue | 863 Units | Site 25,458 sqm
Discover Tengah Garden Residences
Strategically located near the upcoming Tengah MRT Station, Tengah Garden Residences is a premier mixed-use development in the innovative Tengah Estate. This landmark project by a joint venture of Hong Leong, CSC Land Group, and GuocoLand spans a 25,458-sqm site.
Yielding 863 residential units across nine 16-storey blocks alongside 3,000 sqm of commercial space, it promises a vibrant blend of living and retail. Proximity to Jurong Innovation District and Jurong Lake Gardens enhances its appeal as an ideal home and strategic investment.
A Place to Call Home
Experience “Waterfront Garden Living For All” in Singapore’s Forest Town. Nestled near the Jurong Innovation District, the development integrates extensive greenery like the Forest Edge Garden, offering a vibrant blend of nature and modern convenience, keeping you connected via the upcoming Tengah MRT.




Key Development Info
Pioneering private mixed-use development in Singapore’s Smart Forest Town, offering an integrated living experience with smart home technology, extensive greenery, and direct MRT connectivity at your doorstep.
11~ 29 Tengah Garden Avenue (District 24)
Address
99-Year from 21 Apr 2025
Tenure
863 Units in 9 Blocks of 16 Storeys (Mixed-Use Development)
Total Units
Approx 25,458.40 sqm/ 273,906 sqft
Site Area
Estimated TOP
1st Sep 2031
Residential: 518 Lots, 216 Bicycle
Commercial: 32 Lots, 16 Bicycle
Carpark Lots

Location & Connectivity
Shopping | Dining | Schools | Green Spaces | What’s Nearby
Tengah Garden Residences enjoys a prime location near the upcoming Tengah MRT station, connecting residents directly to key hubs. For drivers, the PIE, KJE, and AYE are easily accessible, ensuring excellent island-wide connectivity. Nestled near the Jurong Innovation District, the development integrates extensive greenery, offering a vibrant blend of nature and modern living with nearby parks like Bukit Batok Nature Park.
This prime positioning effortlessly connects the tranquility of nature with modern urban conveniences, keeping the city and major shopping malls well within reach.

What’s Nearby?
🛍️ Shopping & Groceries
- Lot One Shoppers Mall
- Hillion Mall, Bukit Panjang Plaza
- Keat Hong & Teck Whye Shopping Ctr
🎓 Education & Schools
- South View Primary & Concord Pri
- Bukit Panjang Govt High School
- West Spring & Zhenghua Secondary
🚆 Connectivity & Nature
- Tengah MRT (U/C)
- PIE, KJE, and AYE Expressways
- Jurong Lake & Chinese Gardens

Project Highlights
Tengah | Smart Forest | MRT | Family | Investment
🏆 Pioneering Mixed-Use Development
A premium mixed-use development in Singapore’s smart forest town, featuring 3,000 sqm of commercial space and integrated living.
🚆 Upcoming Tengah MRT Station
Offering seamless connectivity right at its doorstep, linking to major expressways like PIE, KJE, and AYE.
🌳 Integrated Greenery & Smart Living
Embracing ‘Waterfront Garden Living For All’ with a Community Plaza, Forest Edge Garden, and Bacopa Pond.
🤝 Established Developer Consortium
Developed by industry leaders Hong Leong Group, CSC Land Group (Singapore), and GuocoLand (Singapore).
🎓 Close to Reputable Schools
Ideal for families, located near South View Primary, Concord Primary, and Bukit Panjang Govt High School.
🏙️ Near Jurong Innovation District
Located near Singapore’s key innovation hub and Jurong Lake Gardens, offering strong investment and rental potential.
💼 Close to Major Employment Hubs
Near Jurong Innovation District and upcoming commercial nodes, providing a ready tenant pool for investors.

Experience Modern Living
Facilities | Building Design | Interiors
Tengah Garden Residences is meticulously planned with two distinct storeys of facilities, creating a resort-like haven that perfectly embodies the ‘Waterfront Garden Living For All’ vision.
Expect full condominium amenities, including a Lap Pool, two Clubhouses, a Children’s Aqua Fun Pool, a sprawling Community Plaza, and serene spaces like the Centella Pond.








Pricing & Exclusive Offers
Price Guide | Estimated Avg $23xx PSF | 0% Commission
1BR 484sf Fr $980,000
2BR 624sf Fr $1,110,000
3BR 797sf Fr $1,590,000
4BR 1,130sf Fr $2,290,000
*Price is indicative and subject to changes.
There is no commission required to be paid.

Site Layout & Floor Plans
Site Plan | Smart Homes | Units Layout
Site Plan

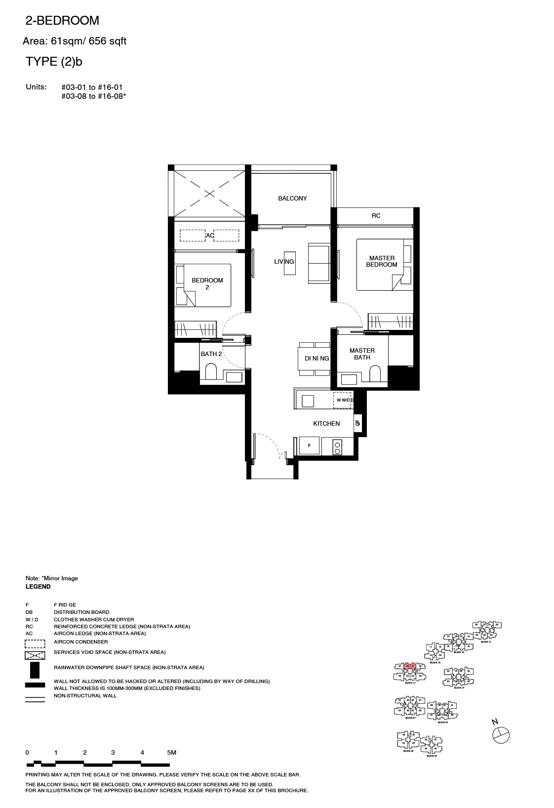
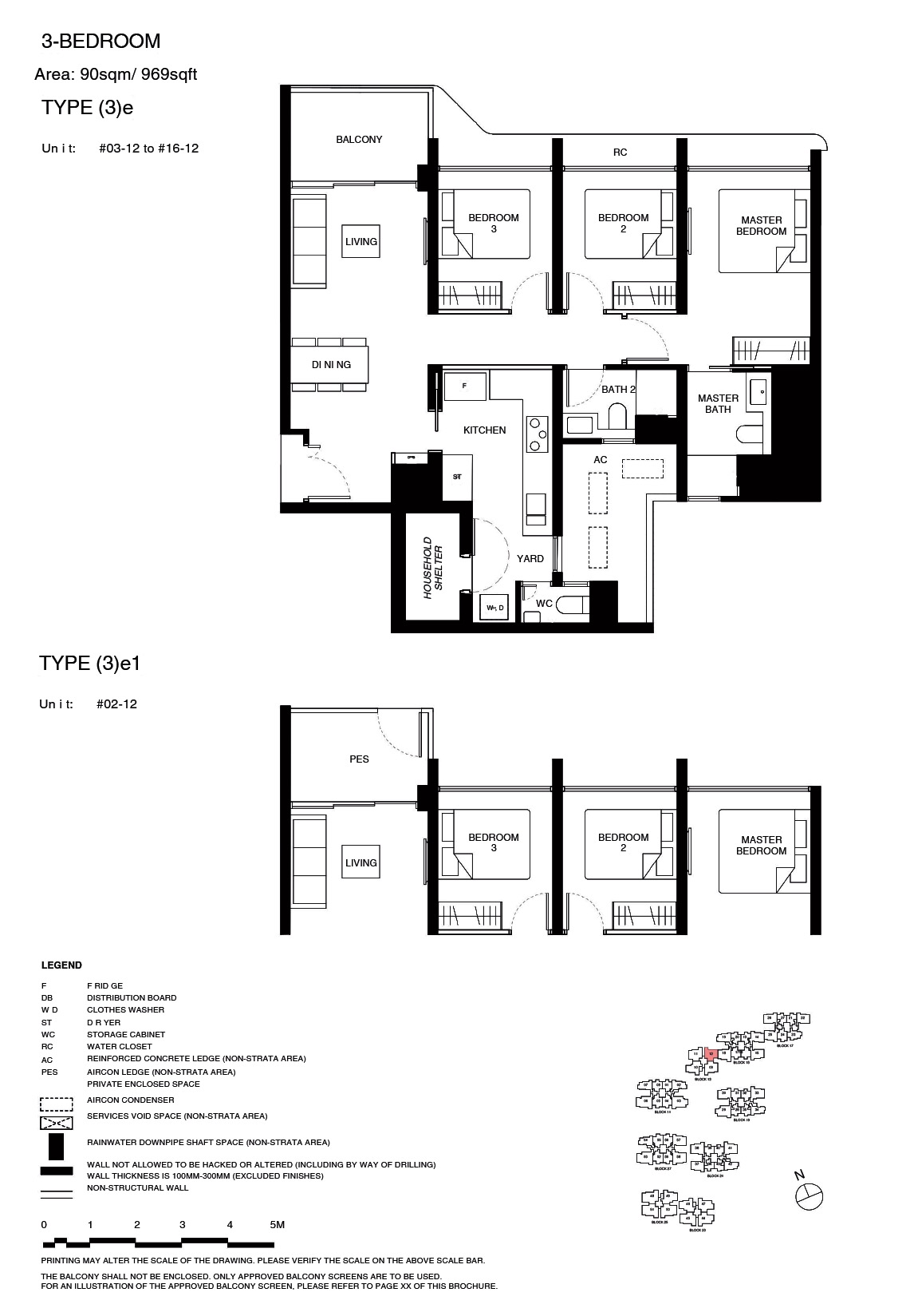
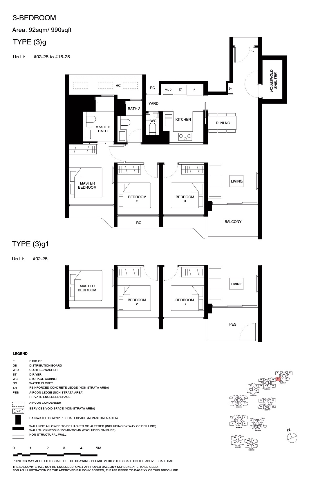
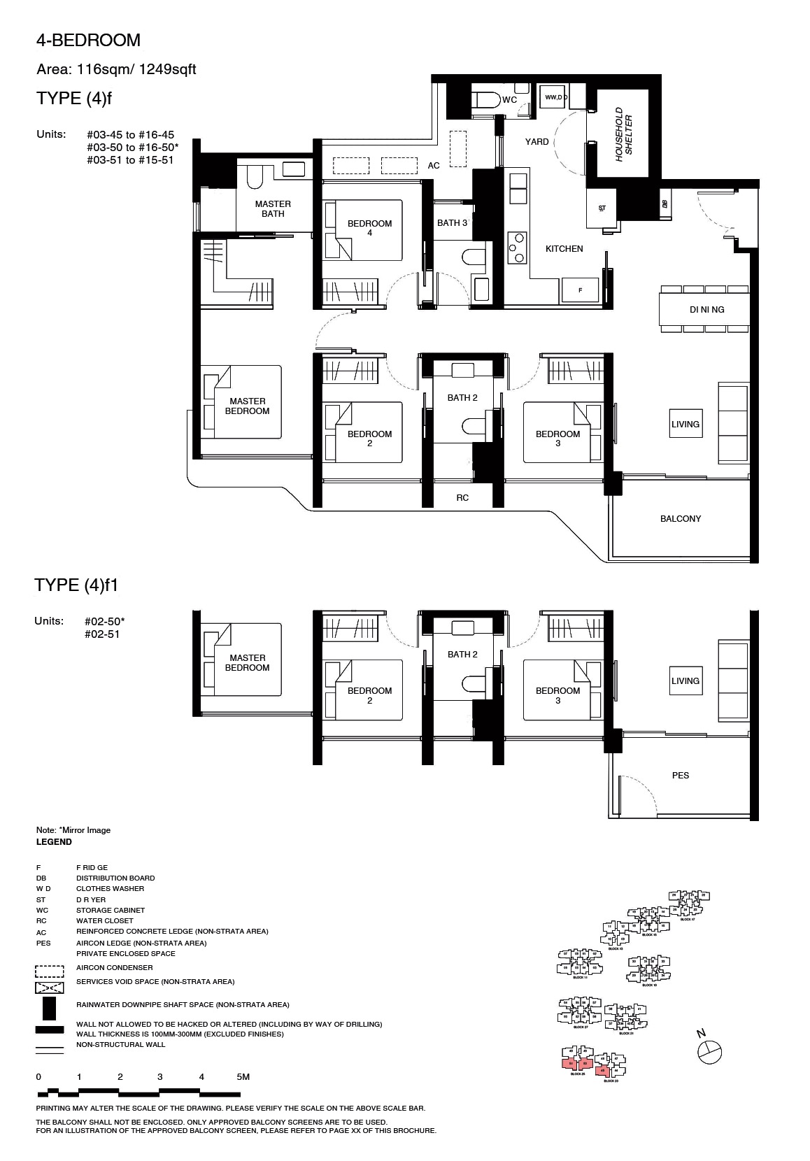
Unit Mixes
| Unit Mix | Est. Sq M | SqFt | Total Units |
|---|---|---|---|
| 1-Bedroom | 45–48 | 484–516 | 6 |
| 2-Bedroom | 58 | 624 | 120 |
| 2-BR Premium | 61–62 | 656–667 | 115 |
| 2-BR Premium (With Study) | 70 | 753 | 102 |
| 3-Bedroom | 74–77 | 797–829 | 96 |
| 3-BR (With Store) | 84 | 904 | 88 |
| 3-BR Premium (With Yard) | 90–96 | 969–1033 | 163 |
| 4-BR (With Yard) | 105–106 | 1130–1141 | 88 |
| 4-BR Premium (With Yard) | 116–117 | 1249–1259 | 85 |
Typical Floor Plans
Explore thoughtfully designed layouts with the freedom to choose what fits you best.
1 Bedroom
Layout
484–516 sqft


2 Bedrooms (Compact & Deluxe)
Multiple Types
624-667 sqft (Standard/Premium)
753 sqft (With Study)





3 Bedrooms (Compact & Deluxe)
Multiple Types
797-904 sqft (Standard/Store)
969-1033 sqft (Premium + Yard)












4 Bedrooms
Layout
1130-1259 sqft







Tengah Garden Residences Floor Plans

Download Resources
eBrochure | Floor Plan
Get the official project brochure and floor plans delivered straight to your inbox.

📥 Official Project Brochure & Floor Plan
Complete project details, floor plans, and pricing information

Proudly Developer By


Hong Leong Group (HLG), founded in 1963, is one of Southeast Asia’s largest conglomerates with global operations across financial services, manufacturing, property development, hospitality, consumer goods, healthcare and investments. It has listed companies on major stock exchanges worldwide and employs over 35,000 people. GuocoLand Limited, part of Guoco Group under HLG, is a Singapore-listed, award-winning developer known for quality and innovative projects. Headquartered in Singapore, it operates in Singapore, China and Malaysia, and expanded into the UK and Australia in 2017 through a partnership with Eco World International.

