Jump To
Skies Miltonia: Penthouse & Townhouses fr $2.8mil / $7xx PSF
โSkies Miltonia: A symbol of opulence in the North, with tranquil greenery, glistening waters, and exclusive golf course and reservoir views.โ
Townhouses & Penthouses Available For Sales
Enjoy Immediate Possession of Your Dream Home
Townhouses / Penthouses
Khatib & Yishun MRT
Northpoint / Chong Pang
Northland Primary School
“Experience Golf & Reservoir Views, Your Exclusive Northern Home“
0
Total Units
0
Year Completed

INTRODUCTION
- Khatib & Yishun MRT
- 420 Units
- District 27
- Fact Sheet
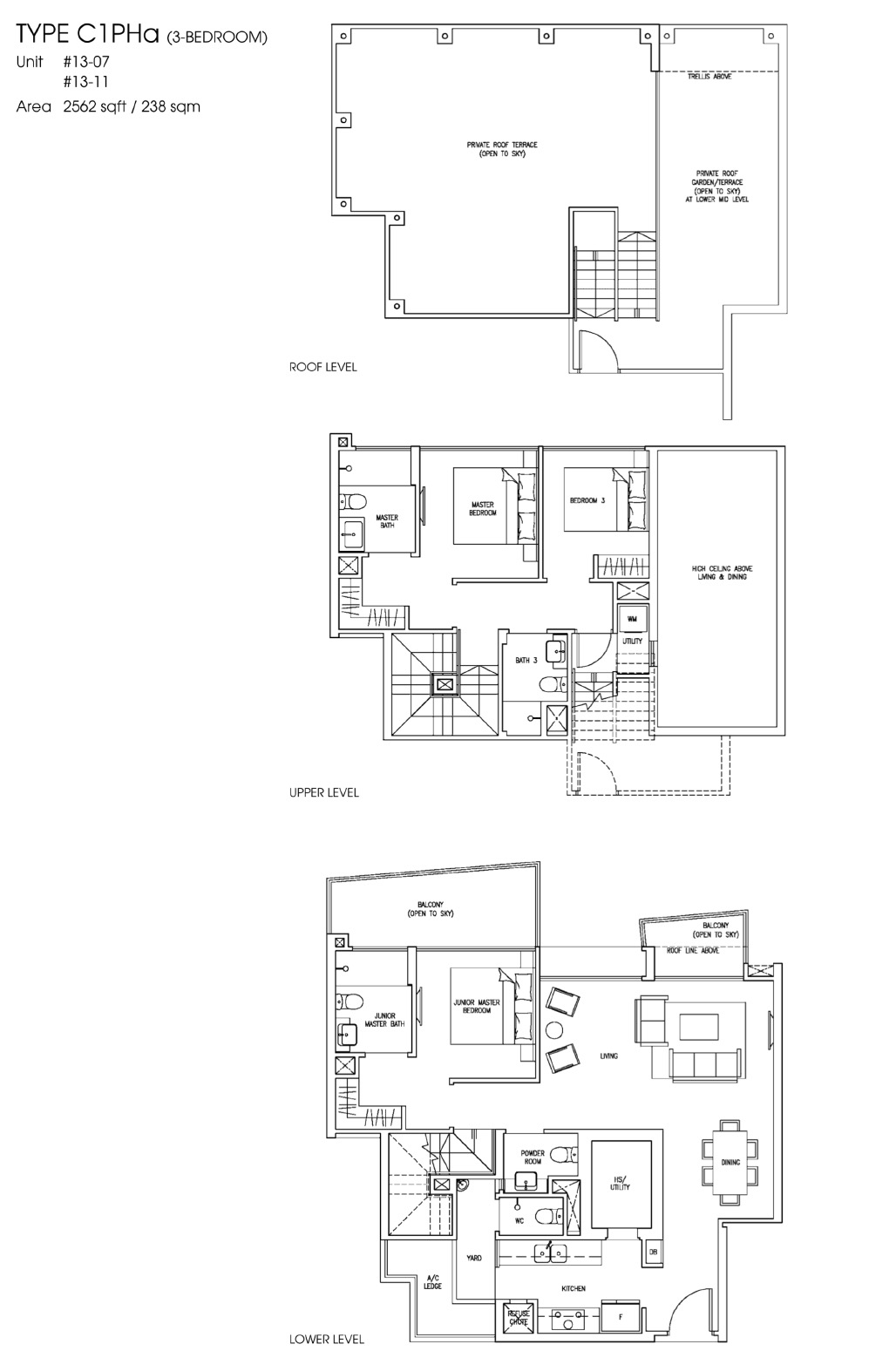
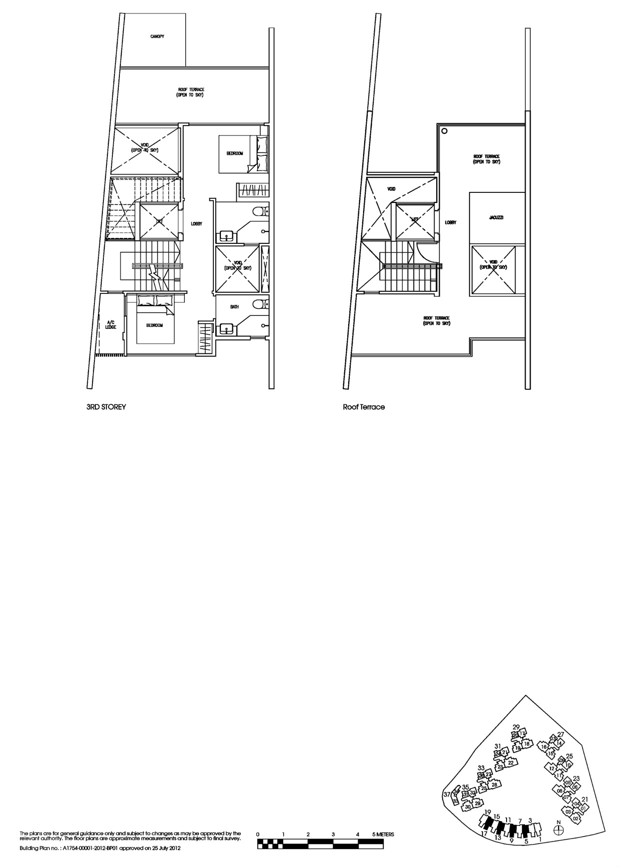
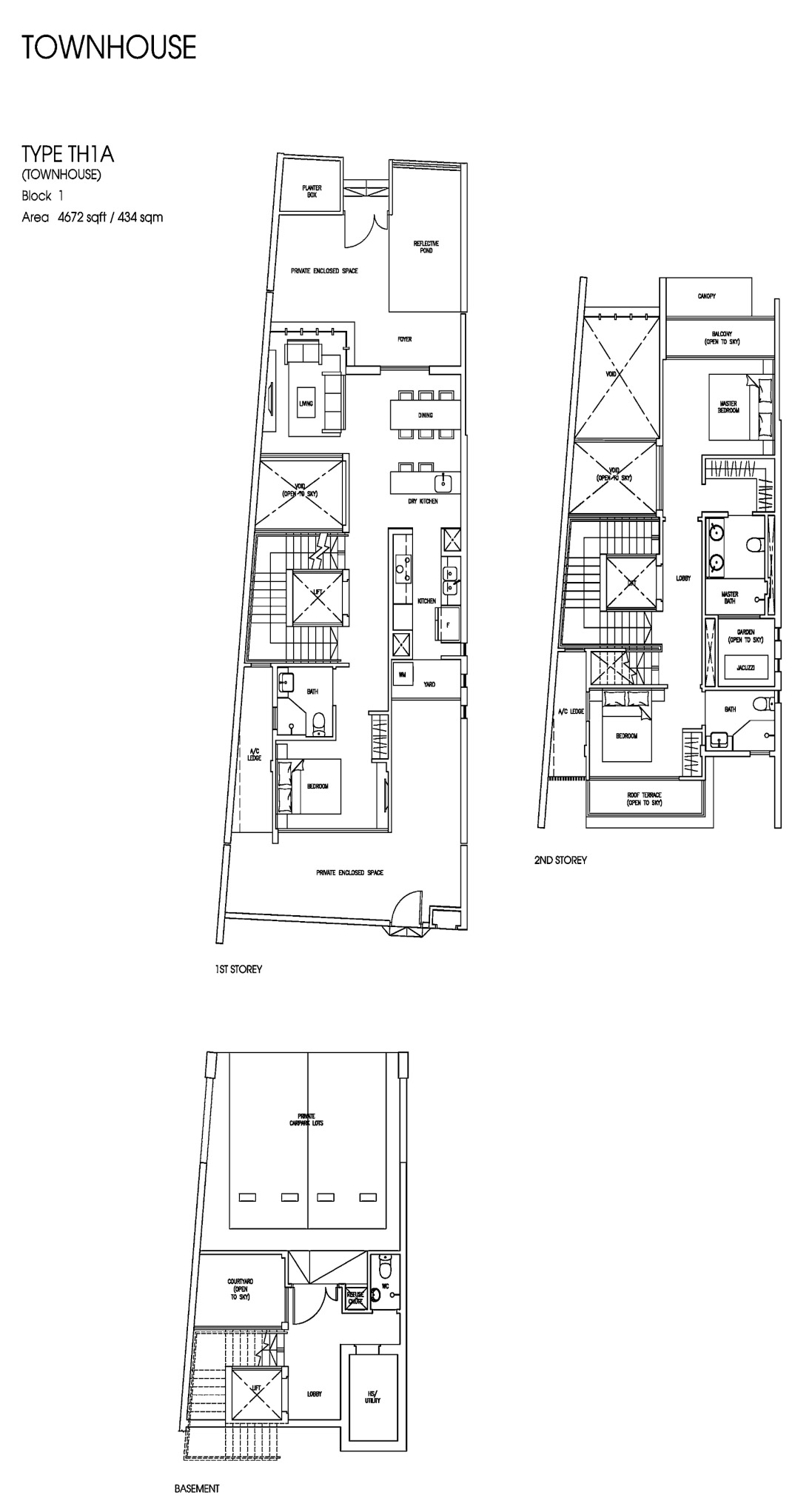
Skies Miltonia is an established private condominium in the tranquil Miltonia Close (District 27), Singapore. Developed by TG Master Pte Ltd, this prominent development features 13-storey residential blocks, exclusive townhouses, and 2 retail shop units. The project offers a total of 420 residential units, including 10 spacious townhouses, making it a true landmark in the North.
Obtaining its TOP in 2016, its proximity to the Seletar Aerospace Park (SAP) enhances its appeal for families and as a strategic investment. The development is conveniently located near reputable schools like Northland Primary, Northbrooks Secondary, and Chung Cheng High School (Yishun), making it ideal for families with school-going children.

Investor
Skies Miltonia, a completed development, offers immediate occupancy and strong rental potential. Its strategic location near the flourishing Seletar Aerospace Park (SAP), a hub for world-class establishments like Rolls Royce and Bell Helicopter, makes it an excellent investment. The proven track record of developer TG Master Pte Ltd further assures quality and sustained value.
Families will benefit immensely from its proximity to a wide selection of acclaimed schools nearby, including Northland Primary School, Gems International School, Chung Cheng High School, and Northbrooks Secondary School, offering diverse educational pathways.
Set against the picturesque backdrop of Lower Seletar Reservoir and offering exclusive golf course views, Skies Miltonia provides a peaceful, nature-infused lifestyle, while remaining close to major transport nodes, employment hubs, and lifestyle amenities.
Fact Sheet
| Type | Descriptions |
|---|---|
| Project Name | Skies Miltonia |
| Developer | TG Master Pte Ltd |
| Location | Miltonia Close (Yishun Planning Area), District 27 |
| Tenure | 99 Years (from Feb 20, 2012) |
| Estimated Completion | TOP Obtained: Dec 31, 2016 |
| Site Area | Approx. 181,911.6 sqft / 16,900 sqm |
| Total Units | 420 Residential Units (incl. 10 Townhouses) + 2 Shops |
| Car Park Lots | 431 Carpark Lots + 4 Handicapped Lots |

HIGHLIGHTS
- Completed in 2016 (TOP)
- District 27 – Yishun Region
- By TG Master
- Near Northland Primary School
- Established Development in Yishun โ A completed project, providing immediate possession and a unique modern lifestyle.
- Exclusive Golf Course & Reservoir Views โ Overlooking Orchid Country Club and Lower Seletar Reservoir.
- Near Seletar Aerospace Park (SAP) โ A blooming ground for world-class establishments.
- Proximity to Acclaimed Schools โ Including Northland Primary and Chung Cheng High School.
- Reputable Developer โ TG Master Pte Ltd, well-established.
- Close to Major Employment Hubs โ Minutes to Seletar Aerospace Park and Woodlands Industrial Park.
- Shuttle Service to MRT Stations โ To Khatib & Yishun MRT stations.
- Unblocked Views and Tranquil Surroundings โ Facing golf course, reservoir, or greenery.
- Near Reputable Education Institutions โ Including Gems International School, Chung Cheng High, and Yishun Junior College.
- Strong Investment Potential โ High demand from SAP professionals and families in the under-supplied North.

LOCATION
- Shopping & Groceries
- Food & Restaurant
- Education & Schools
- What’s Nearby?
- Google Map & Street View
Skies Miltonia is nestled in the tranquil Miltonia Close locale, yet well-connected. While the serene setting appeals to homeowners, residents benefit from a shuttle service to Khatib (3-min drive) and Yishun (4-min drive) MRT stations on the North-South Line. Easy access to CTE/SLE/TPE and the upcoming North-South Corridor (NSC) will further enhance city connectivity.
A key highlight of the development is its exclusive golf course and reservoir viewsโwith many units enjoying panoramic scenes of Orchid Country Club and Lower Seletar Reservoir. The architecture thoughtfully implements a North-South building orientation for optimal privacy and unblocked views, with landscaping designed to blend with lush surroundings.



Striking the Balanced in Life

Shopping & Groceries
Residents can shop and dine at nearby malls, including:
- NTUC Fairprice at Orchid Country Club
- Sheng Siong Supermarket, Northpoint City, Wisteria Mall, and Yishun Chong Pang City

Food & Restaurant
Food enthusiasts will enjoy the variety of dining options nearby:
-
Chong Pang Food Centre, Yishun.

Education & Schools
Families with children will benefit from proximity to top educational institutions:
- Within 1KM: Northland Primary (0.73km), Northbrooks Secondary (0.5km)
- Nearby: Gems Intl School, Chung Cheng High (1.4km), Peiying Primary (1.89km)
- Other Notable Schools: Chong Fu Primary, Yishun JC, and ITE Yishun Campus, offering diverse educational pathways for all ages.

Green Spaces & natural Parks
Surrounded by greenery, the development offers a tranquil retreat:
- Orchid Country Club & SAFRA Yishun
- Lower Seletar Reservoir Park, Yishun Park, and Yishun Pond are all short drives away.
What’s Nearby?
Easy Access
โข Khatib MRT (NS14) โ (Approx 3-min drive)
โข Yishun MRT (NS13) – (Approx 4-min drive)
โข Major Expressways: SLE, TPE, CTE, and Upcoming NSC
Shopping/ Recreation
โข Northpoint City โ minutes away
โข Orchid Country Club
โข SAFRA Yishun Country Club
โข Wisteria Mall (Yishun Ring Rd)
Primary Schools
โข Northland Primary School โ Within 1 km
โข Peiying Primary School
โข Chong Fu Primary School
โข Ahmad Ibrahim Primary

FLOOR PLAN
- Design Concept
- Site Plan & Facilities
- Units Mixes
- Units Layout
Site Plan



Your SPACES, Your Choices
Explore thoughtfully designed layouts with the freedom to choose what fits you best. From compact to spacious family suites, our flexible layouts offer versatile options to suit your every need.
Penthouses & Townhouses Available for Sales



3BR Penthouse Virtual Tour

4BR Penthouse Virtual Tour


Townhouse TH1 Virtual Tour


Townhouse TH1A Virtual Tour

GALLERY
- Building Design
- Common Facilities
- Exterior & Interior Design
Spanning a generous 1.69-hectare plot, Skies Miltonia is meticulously planned as a resort-like haven. Enjoy full condominium facilities, from a majestic 50m lap pool and BBQ pits to unique features like a Bubble Glass Lift to the Sky Gym, a clubhouse with waterscape views, and a Meditation Pavilion Garden that provide tranquil escapes.

Reenergise
Reenergise your body with our state-of-the art amenities, curated for your preferred activities at various facilities on different levels. Reward yourself with deeper Well-Being. At our swimming pool and jacuzzi, you can let it all go and collect yourself at the same time. While the unblocked view relaxes your mind, leave you feeling invigorating as ever.

Modern
Exteriors & Facilities









PRICING/ DISCOUNT
- Developer’s Direct Best Pricing
- Developer’s Discount/ Promotion
- 0% Commission Payable

It is important to only engage the Official Direct Developer Sales Team to assist you to enjoy the best possible direct developer price. There is no commission required to be paid.

DOWNLOAD
- Official Project Brochure & Floor Plan
- Market CMA Analysis (Ask)
- Customised Research Report (Ask)

