Promenade Peak: Luxury D9 Living Near Great World City MRT
“As Singapore’s tallest residential-only building, Promenade Peak offers exclusive D9 living, MRT access, rental appeal, and reputable developer, poised for long-term capital growth.”
Get customised Comparison Report & Secure your Viewing Slot Now!
MRT, malls, schools & park. Smart layouts, full facilities & great growth potential. Ideal for homebuyers & investors!
1 to 5 BR Units
Havelock/ Great World MRT
Great World City (4-min walk)
River Valley Primary School
“Canberraโs Crown Jewel โ Where Comfort Meets Opportunity”
0
Total Units
0
Est. Completion

INTRODUCTION
- Havelock/ Great World MRT
- 596 Units
- 99,953 sqft Land Size
- Fact Sheet
Nestled in the heart of Singaporeโs prestigious District 3, Promenade Peak is the latest residential masterpiece by Allgreen Properties. Strategically located on Zion Road (Parcel B), this 99-year leasehold development spans approximately 99,953 square feet and is poised to offer 596 luxurious units.
Strategically located between Great World and Havelock MRT stations, Promenade Peak provides seamless access to every corner of Singapore via the Thomson-East Coast Line. Whether you’re heading to the Orchard shopping belt, Marina Bay Financial Centre, or the CBD, youโll get there in minutes. Surrounded by a full suite of amenities, residents can expect a lifestyle thatโs both dynamic and serene โ ideal for families, working professionals, and retirees alike.

Investor
Allgreen Properties, the developer who own the Great World City had secured the Parcel B land at $1,304 per square foot per plot ratio (psf ppr).
In contrast, the adjacent Zion Road (Parcel A) mixed development, was awarded earlier to a joint venture between City Developments Ltd (CDL) and Mitsui Fudosan, with a larger land size of 164,439 square feet at lower land rate of $1,202 psf ppr.
Mixed-use developments often come with additional complexities, such as zoning requirements, construction costs, and operational considerations for the commercial spaces. So the land price comparison here would not justify the Parcel A could sell lower price than Parcel B.
Fact Sheet
| Type | Descriptions |
|---|---|
| Project Name | Promenade Peak |
| Developer | Allgreen Properties |
| Location | 1 Zion Promenade, Singapore 169564 (District 03) |
| Tenure | 99 Years from 4 November 2024 |
| Estimated Completion | 6 February 2031 |
| Site Area | Approx 9285.9 sqm / 99,953 sqft |
| Total Units | 596 Units in 2 blocks of 63-storeys towers, Singaporeโs tallest residential-only building. Features 4 facility zones, 6 clubhouses, and 7 pools. Includes 6 common lifts + 6 private lifts for Promenade Suites units. |
| Car Park Lots | 477 carpark lots in 3 basement level |

HIGHLIGHTS
- Doorstep MRT & Mall (4-min walk)
- District 03 Adjacent to River Valley
- By Robert Kuok – Allgreen Properties
- Within 1KM River Valley Primary School
- Prime District 03 Location โ Offers prestige and unparalleled central access.
- Excellent Connectivity โ Just a 4-minute walk to Great World MRT (TEL) and Havelock MRT, with 3-min drive to CTE and 6-min drive to AYE.
- Proximity to Amenities โ Walkable to Great World City, Zion Riverside Food Centre, Tiong Bahru Estate, and minutes from Orchard Road.
- Reputable Schools โ Within 1km to River Valley Primary School.
- Renowned Developer โ By Allgreen Properties, a brand known for reliability and quality.
- Comprehensive Unit Mix โ 596 units including 1-5BR, catering to diverse needs from singles to families.
- Modern Facilities โ Features 4 extensive facility zones, 6 clubhouses, and 7 pools, offering varied recreational options.
- Strong Rental Demand โ Popular with expatriates and CBD professionals.
- Nearby Green Spaces โ Close to Alexandra & Singapore River, Fort Canning Park, Singapore Botanic Gardens, and Gardens by the Bay.
- Future Growth Potential โ Located in a rapidly developing zone with high upside potential.

LOCATION
- Shopping & Groceries
- Food & Restaurant
- Education & Schools
- What’s Nearby?
- Google Map & Street View
Promenade Peak enjoys a coveted position in the River Valley / Zion Road enclave, renowned for its central location, tranquil charm, and lifestyle conveniences. Within a 4-minute walk, residents reach Great World MRT and Havelock MRT. CTE (3-min drive) and AYE (6-min drive) ensure seamless road access to Orchard, Shenton Way, CBD, and Marina Bay.



Surrounding View





Striking the Balanced in Life

Shopping & Groceries
Residents can shop and dine at nearby malls, including:
- Great World City (4-min walk) and Orchard Road (5-min drive).

Food & Restaurant
Food enthusiasts will enjoy the variety of dining options nearby:
- Zion Riverside Food Centre (4-min walk), Tiong Bahru Estate, and Great World City.

Education & Schools
Families with children will benefit from proximity to top educational institutions:
- River Valley Primary School
- School of the Arts (SOTA)
- Singapore Management University (SMU)

Green Spaces & natural Parks
Surrounded by greenery, the development offers a tranquil retreat:
- Alexandra & Singapore River (1-min walk)
- Fort Canning Park
- Singapore Botanic Gardens
What’s Nearby?

Easy Access
โข Havelock MRT (TEL) โ 4-min walk
โข Great World MRT (TEL) โ 4-min walk
โข Buses Services: 5, 16, 16M, 75, 175, 195, and 970
Shopping/ Recreation
โข Great World City (4-min walk)
โข Zion Riverside Food Centre (4-min walk)
Primary Schools
โข River Valley Primary School
โข SOTA
โข SMU

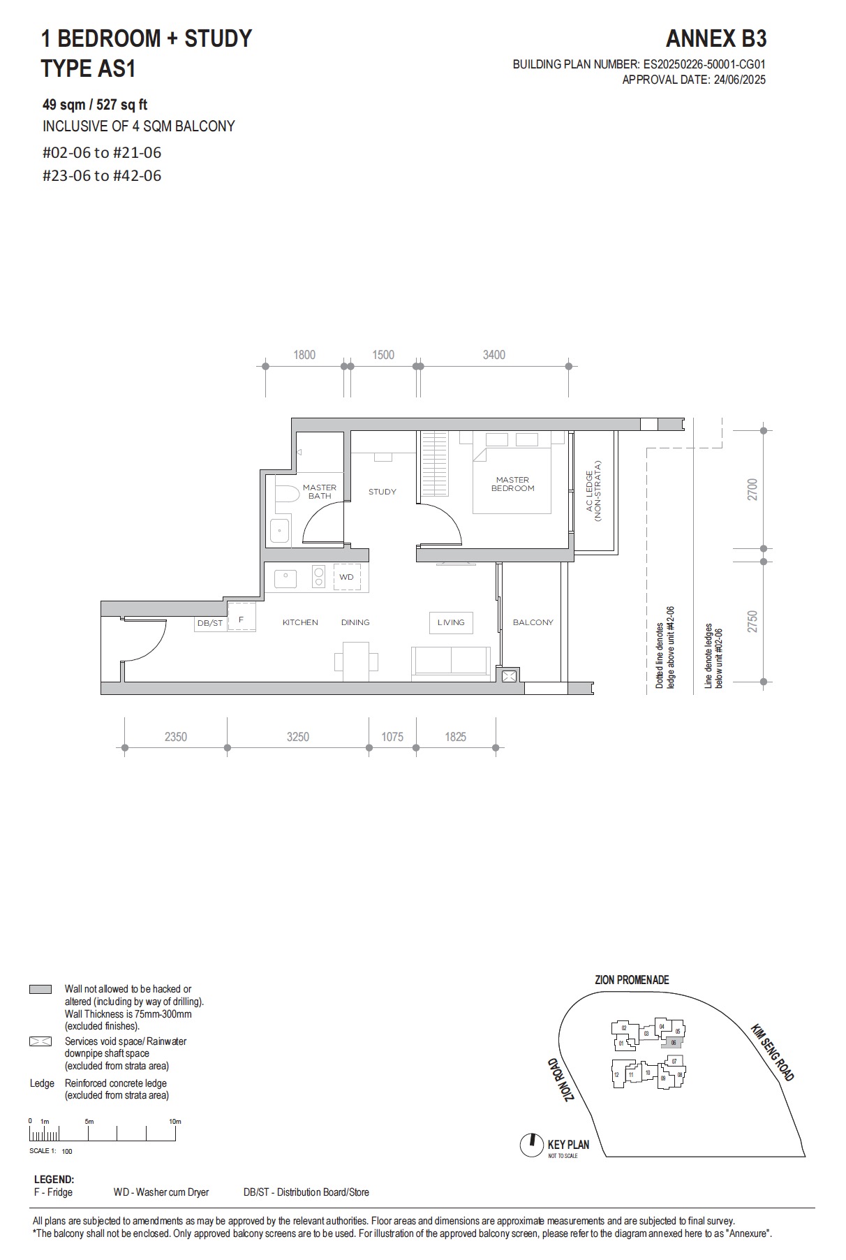
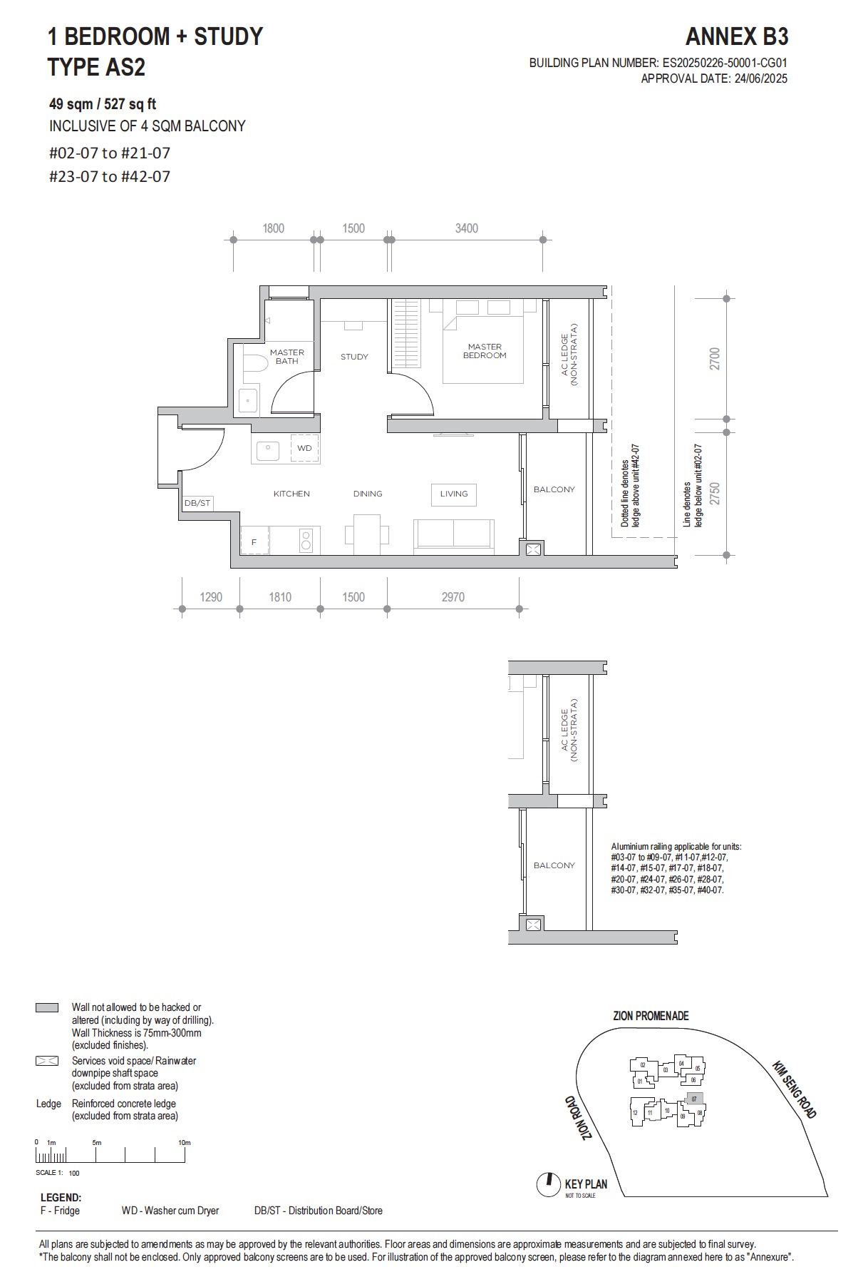
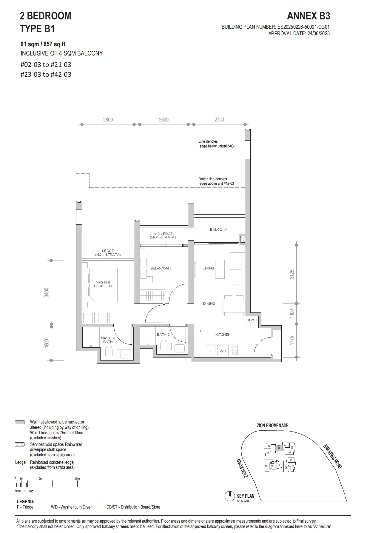
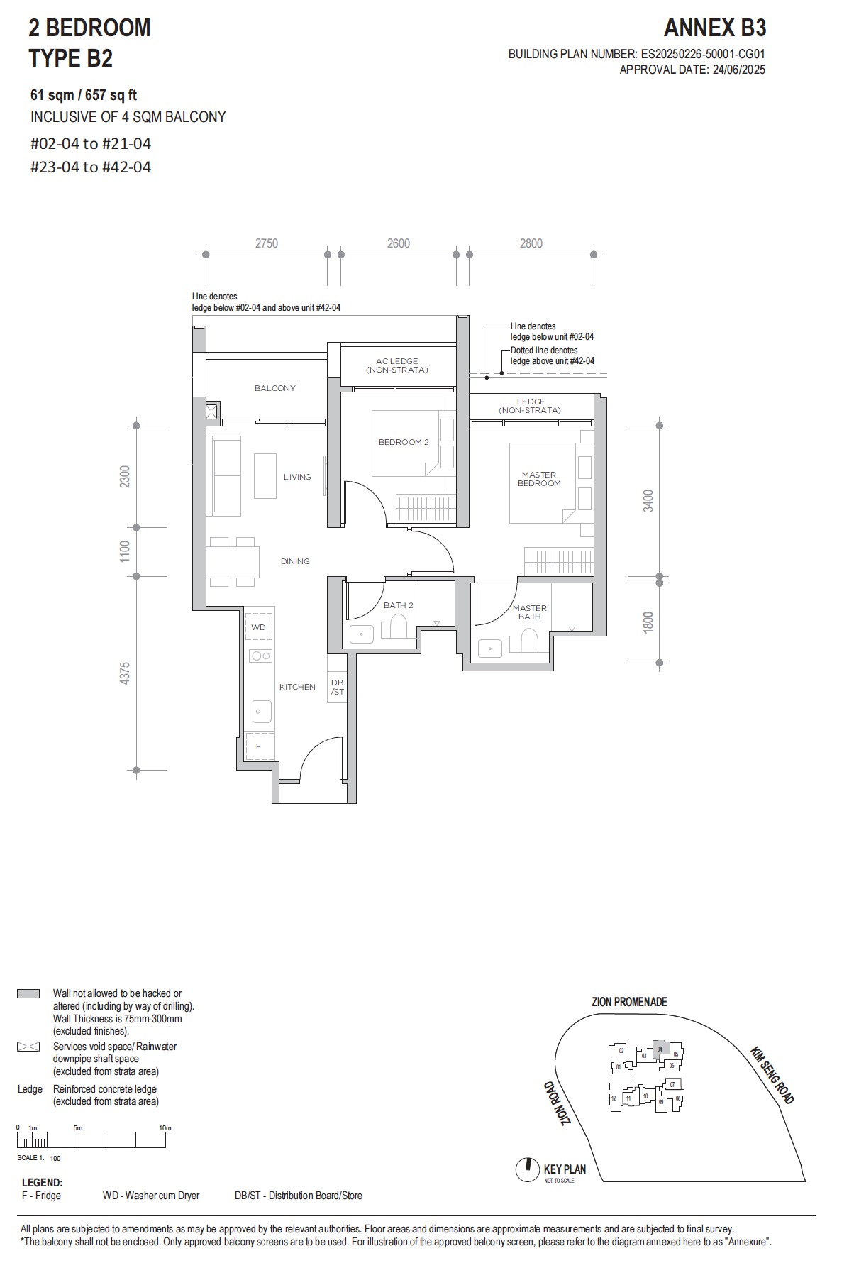
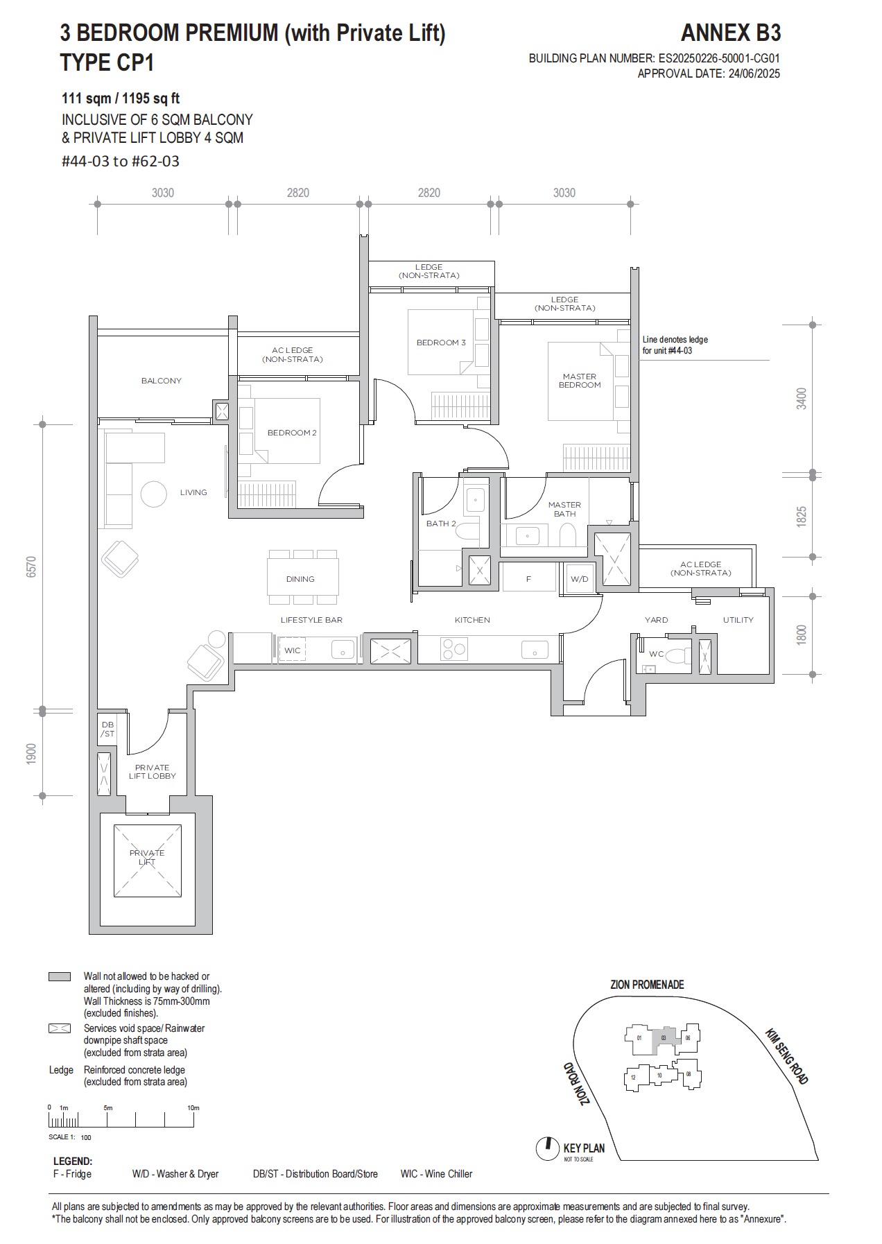
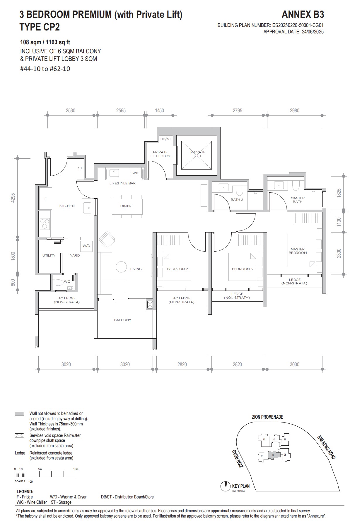
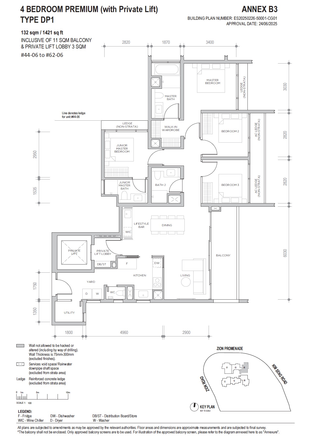
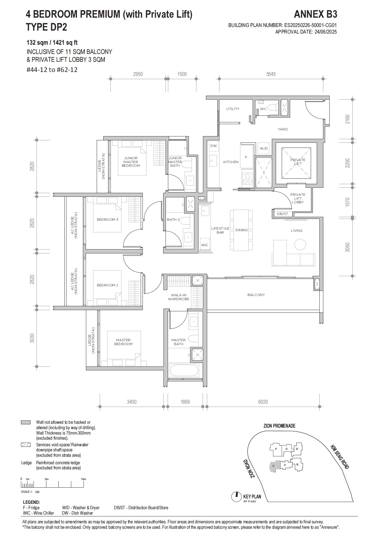
FLOOR PLAN
- Design Concept
- Site Plan & Facilities
- Units Mixes
- Units Layout
Site Plan








Your SPACES, Your Choices
Explore thoughtfully designed layouts featuring high-end finishes, top-of-the-line appliances, and branded fittings. Our flexible layouts, from compact to spacious, offer versatile options to suit your every need.
Scale Model
Typical Floor Plan & Virtual Tour





















Smart Home
Welcome to the future of living. Our smart homes blend sleek design with advanced technology for ultimate comfort and convenience. Control lighting, climate, security, and entertainment with a touch. Discover a new era where luxury meets innovation, a feature Singaporeans will find both practical and appealing. Embrace the future today!
Each home is equipped with smart home technology, allowing residents to control lighting, climate, and security systems at the touch of a button or via voice commands.


GALLERY
- Building Design
- Common Facilities
- Exterior & Interior Design
The architecture blends sleek modern lines with earthy tones and elegant materials. Interiors are designed with both style and practicality in mind โ featuring efficient layouts, quality fittings, and large windows to allow natural lightand ventilation. Selected units offer flexible space options, ideal for home offices or hobby corners to suit the needs of todayโs evolving households.

Reenergise
Reenergise your body with our state-of-the-art amenities across 4 distinct facility zones, including 6 clubhouses and 7 pools. From the Sky Peak infinity pool and Wellness Peak gym to the Social Peak hanging garden and Grand Promenade lap pool, every level offers curated activities for your well-being. Reward yourself with deeper well-being.

Modern

Exteriors & Facilities

















PRICING/ DISCOUNT
- Developer’s Direct Best Pricing
- Developer’s Discount/ Promotion
- 0% Commission Payable

1BR + Study 527sf Fr $1,433,600~$1,629,900
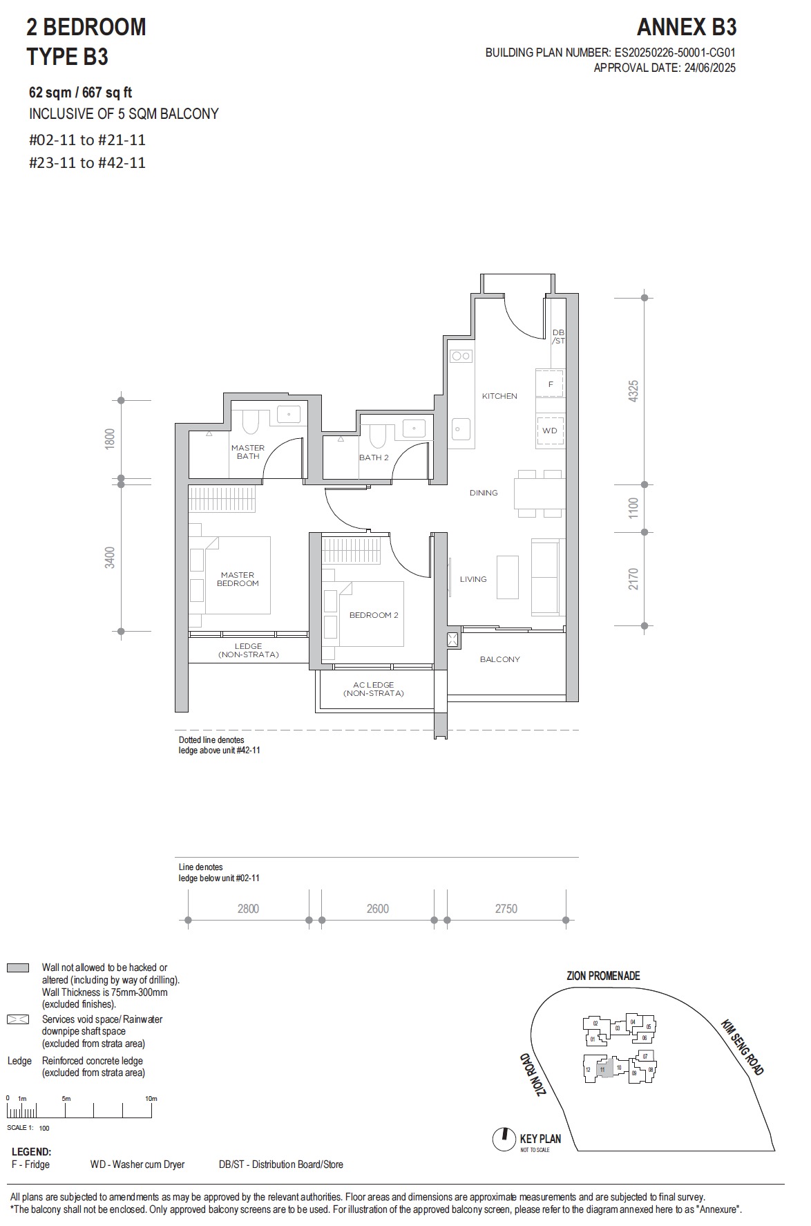
2BR 667-689sf Fr $1,958,200~$2,137,200 – Last 26
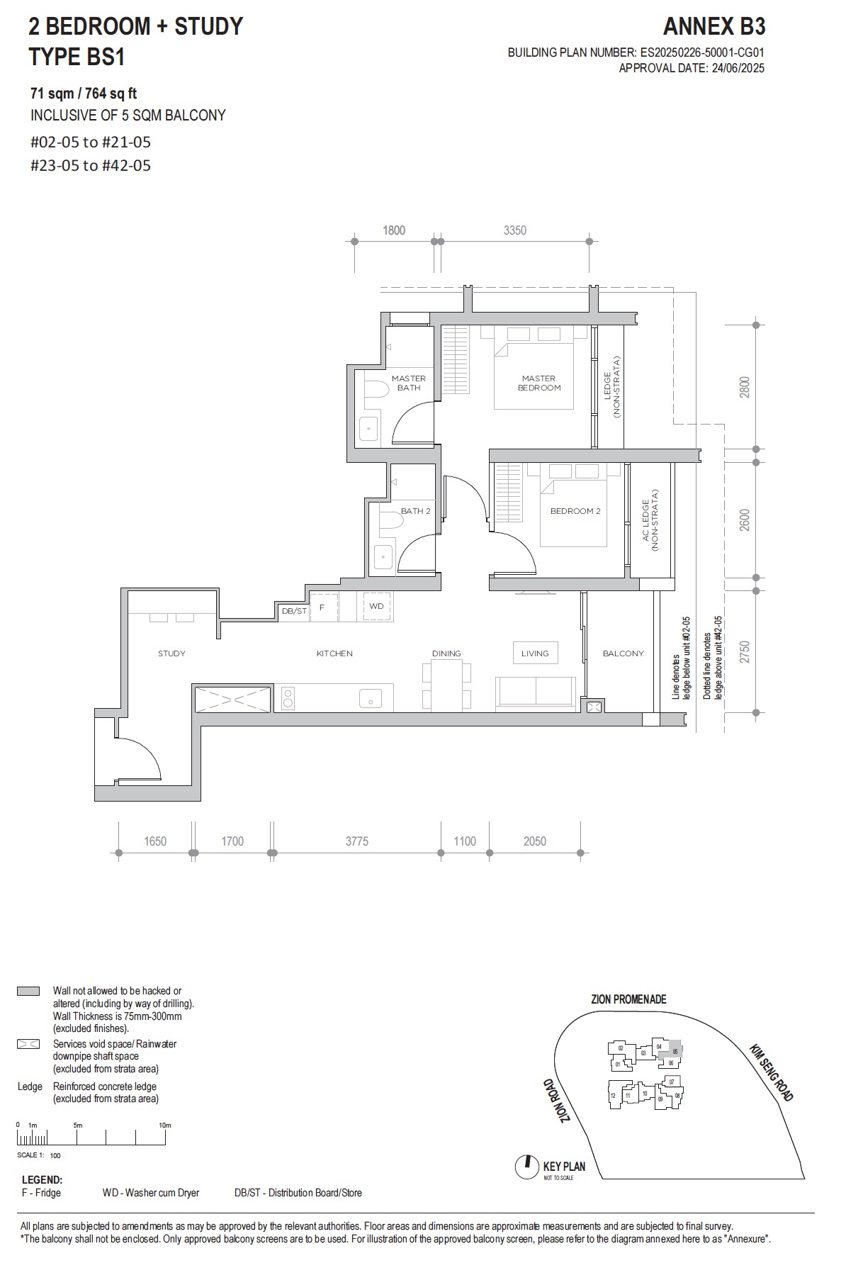
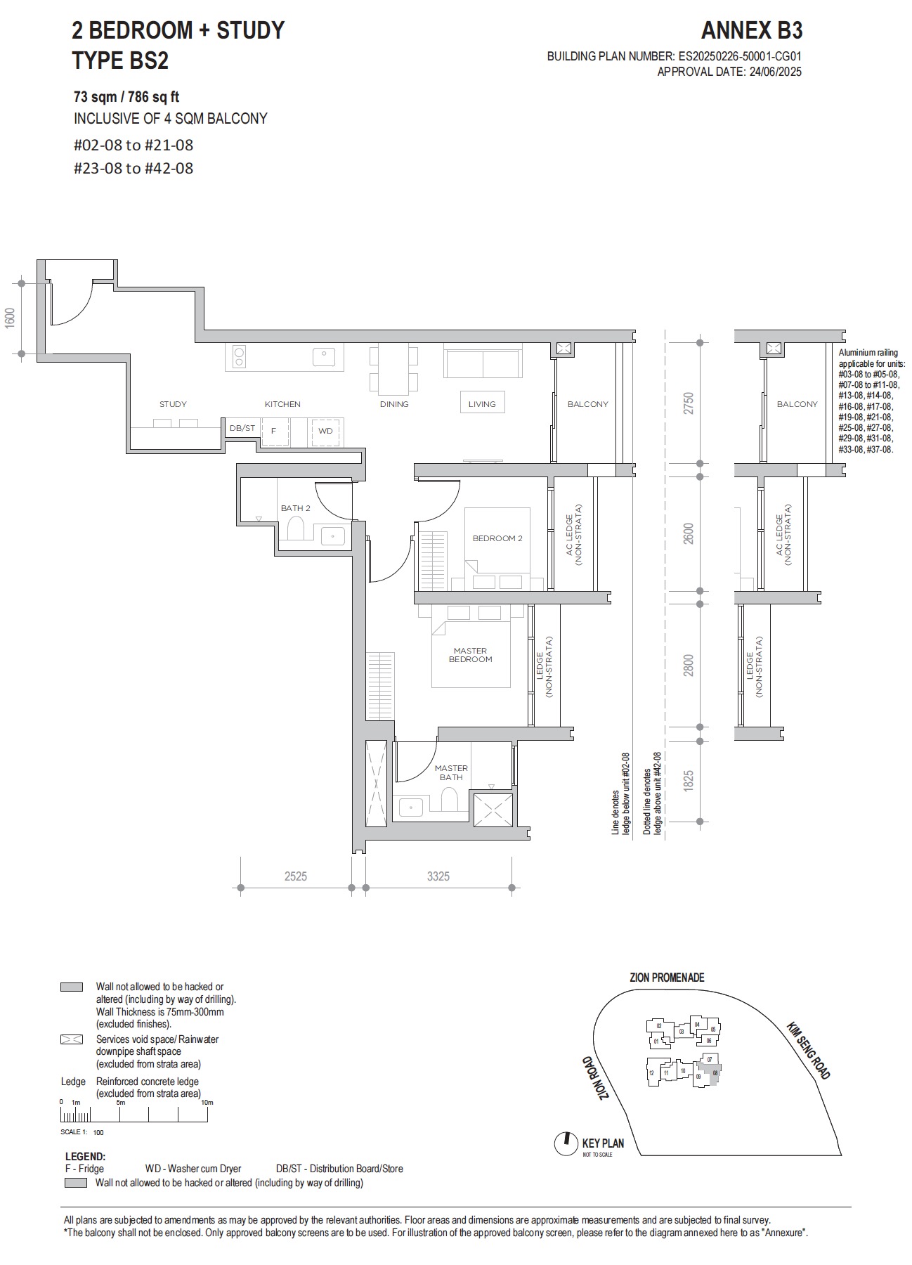
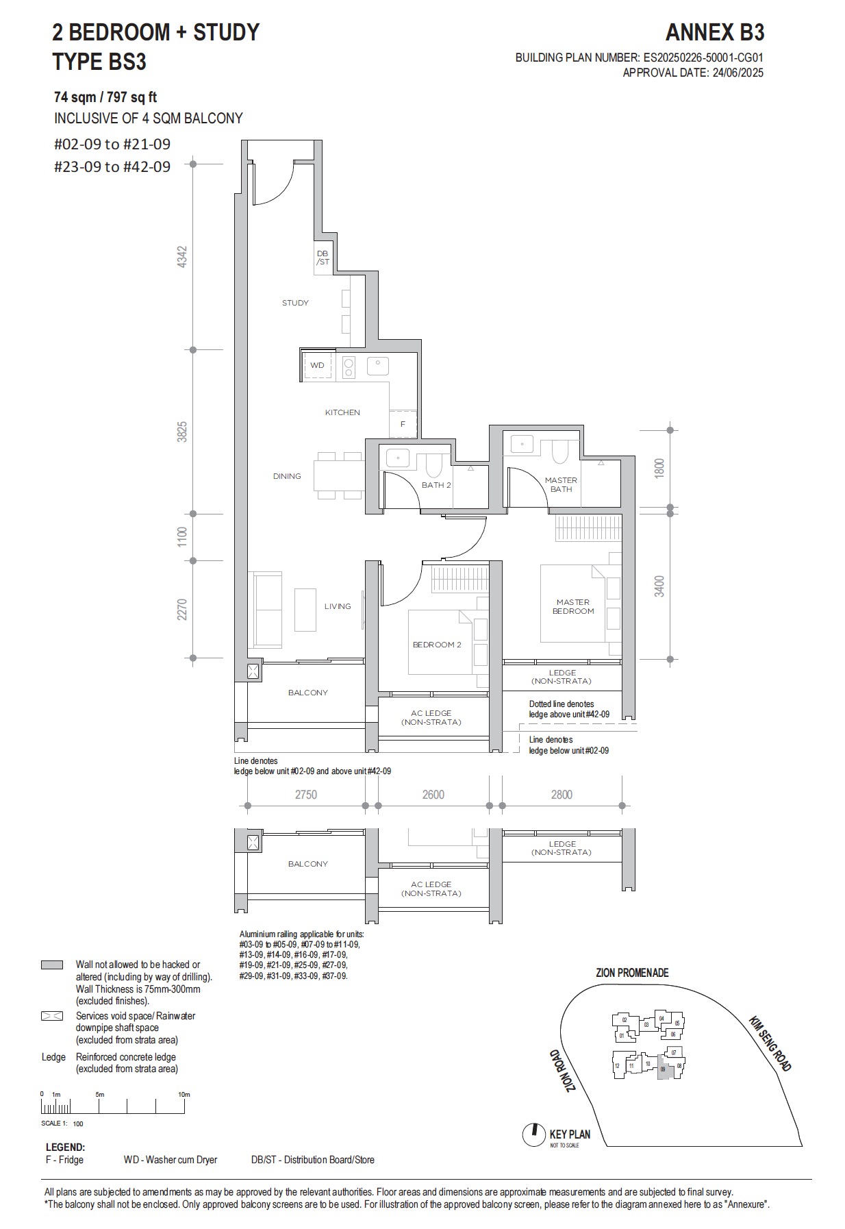
2BR + Study 764-797sf Fr $2,132,600~$2,495,600
3BR 1033sf Fr $3,111,900~$3,215,800 – Last 7
3BR Premium (With Private Lift) 1163-1195sf Fr $3,902,600~$4,165,200 – Last 10
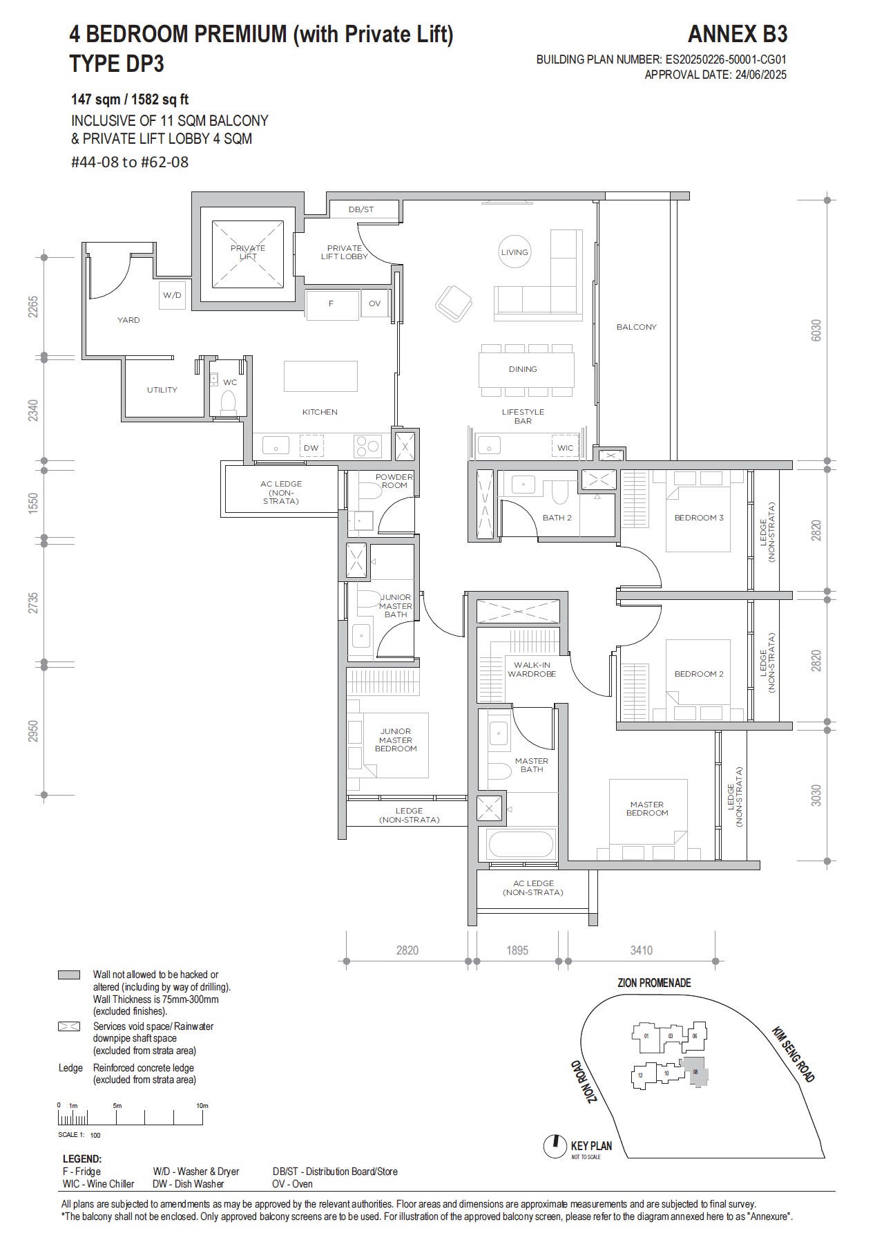
4BR Premium (With Private Lift) 1421sf Fr $4,543,400~$4,968,800 – Last 21
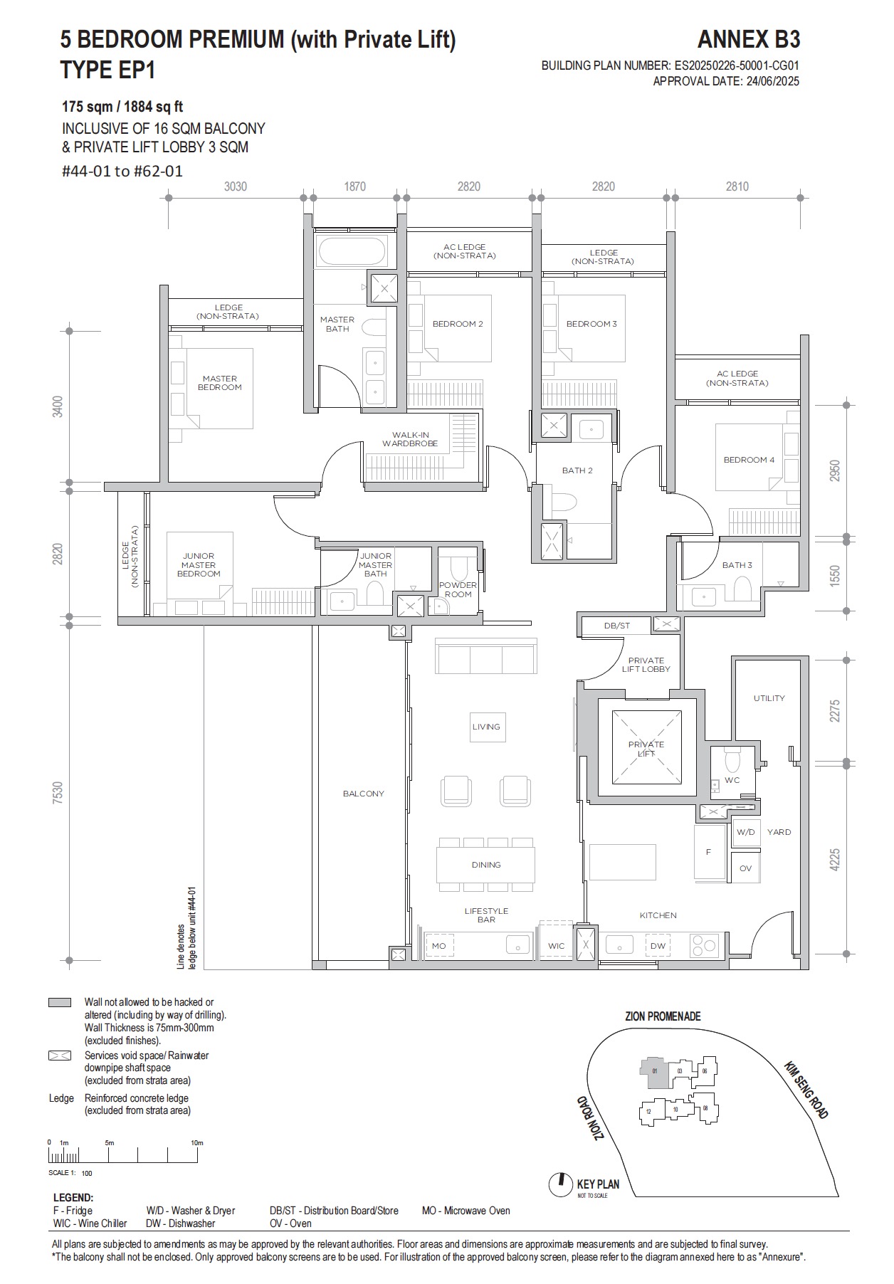
5BR Premium (With Private Lift) 1884-4144sf Fr $6,310,500~$6,733,200 – Last 16
It is important to only engage the Official Direct Developer Sales Team to assist you to enjoy the best possible direct developer price. There is no commission required to be paid.

DOWNLOAD
- Official Project Brochure & Floor Plan
- Market CMA Analysis (Ask)
- Customised Research Report (Ask)



- Robert Kuok Group
- Allgreen Since 1986
- Global Presences

Allgreen Properties Limited, established in 1986, is one of Singaporeโs leading real estate developers and a proud member of the Kuok Group. With a diverse portfolio spanning residential, retail, commercial, serviced apartments, and hotels, Allgreen has earned a solid reputation for delivering high-quality developments with enduring value.
๐ Award-Winning Developments in Singapore
Allgreen’s commitment to excellence is reflected in its many award-winning projects, including:
-
Great World City โ An iconic integrated development combining retail, office, and serviced apartments.
-
Tanglin Mall โ A popular lifestyle destination offering a curated blend of shopping and dining.
-
Fourth Avenue Residences, Juniper Hill, and Royalgreen โ Signature residential developments that exemplify Allgreenโs focus on luxury, livability, and smart design.
๐ International Presence and Strategic Growth
Beyond Singapore, Allgreen has expanded globally through strategic joint ventures, especially in Mainland China. These efforts have resulted in the development of residential, commercial, and hospitality projects in major cities such as Shanghai, Tianjin, Chengdu, Qinhuangdao, Shenyang, Tangshan etc.
The company continues to pursue growth opportunities both locally and internationally, focusing on development projects and investment acquisitions aligned with long-term value creation.

