Generations@Tannery presents a modern multi-user development situated in the prime District 13 industrial cluster. Experience a revolutionary ramp-up industrial building meticulously designed for high-efficiency production and advanced manufacturing.
Unit Sized 150 sqm – 248 sqm
7 mins Walk to Mattar MRT
Proximity to Key Business Hubs
Ramp-Up Industrial Facility
“Empowering Future-Ready Operations in Singapore’s District 13”
Total Units
Est. Completion

Project Overview
Prime District 13 Location | Multi-User | Ramp-Up Facility

Discover Generations@Tannery: A Strategic District 13 Industrial Landmark
Generations@Tannery is set to redefine the modern industrial landscape in Singapore. This premium ramp-up development is strategically situated at a prime location in District 13. Masterfully designed for optimal efficiency, it represents true industrial excellence and strategic business foresight.
Situated within the vibrant District 13 enclave, the project boasts an exceptionally strategic location. With excellent accessibility nearby and close to major city transportation routes, Generations@Tannery offers a truly visionary investment opportunity for forward-thinking businesses.
Engineered for High-Efficiency Production and Logistics Operational Excellence
The development offers 59 premium production units, with highly spacious layouts designed for business owners. Key features include direct unit access and ramp-up capabilities, allowing for dynamic daily workflows and efficient vehicular movements for modern logistics.




Key Industrial Development Info
Generations@Tannery is a premium ramp-up asset with prime zoning, perfectly aligned with District 13’s growth. The modern layout ensures seamless logistical operations with direct vehicular access to production units. This is a strategic investment opportunity in Singapore’s city fringe.
71 Tannery Lane (District 13)
Address
59 Units in 1 block of 12 storeys (Ramp-Up to 5th Floor)
5 Industrial Canteens
Total Units
TBD
Tenure
2030
Estimated TOP
50 Lots
Carpark Lots
Cityind Pte. Ltd.
Developer

Location & Connectivity
District 13 | Expressways | MRT | City Fringe
Ideally positioned within the highly sought-after District 13 industrial zone, Generations@Tannery stands as a beacon of growth, situated near the city center. This premium location is evolving into a central business hub, boasting excellent connectivity and amenities. Accessibility is truly paramount, with remarkably swift access to major expressways like PIE and KPE.

What’s Nearby?
🏭 Industrial & Business
- District 13 Industrial Hub
- Paya Lebar Central
- MacPherson Business Cluster
- City Fringe Enclave
🚇 Connectivity
- MacPherson & Mattar MRT Stations
- PIE (Pan Island Expressway)
- KPE (Kallang-Paya Lebar Expressway)
🏠 Amenities
- Paya Lebar Quarter (PLQ)
- Local F&B Eateries
- SingPost Centre

Project Highlights
City Fringe Location | Premium Industrial | Ramp-Up Design | Growth
🏆 Strategic Prime Location
Prime city fringe location allows for diverse activities including light manufacturing, warehousing, and production operations.
🏭 Ramp-Up Operational Flow
Modern ramp-up design allowing direct vehicular access for transport trucks to units for efficient operations. (Up to Level 5)
🤝 Exclusive 59 Units
A highly exclusive collection of just 59 premium production units, ensuring a focused and quality environment.
📍 Prime District 13 Belt
Prime industrial location near the city center with very easy access to the Pan Island Expressway.
💰 Long-Term Asset Value
Strong operational demand with high growth rates and significant capital appreciation potential over the long term.
🌍 Future-Ready Workspace
Designed for modern industrial users, making it ideal for the rapidly expanding production and enterprise sectors.

Gallery
Industrial Design | Ramp-Up Access | Exterior & Layout
Generations@Tannery features a modern industrial design that seamlessly integrates high-efficiency functionality with robust aesthetics, creating a powerful facade. The contemporary architectural layout strongly reflects a dynamic growth-oriented approach.
Internally, the intelligent design caters specifically to the requirements of modern tenants. The 59 unit layouts are expertly crafted to offer structural strength and scalability.




Pricing & Exclusive Offers
Price Guide | Developer Discount | 0% Commission
TBD
*Price is indicative and subject to changes.
It is important to only engage the Official Direct Developer Sales Team to assist you to enjoy the best possible direct developer price. There is no commission required to be paid.

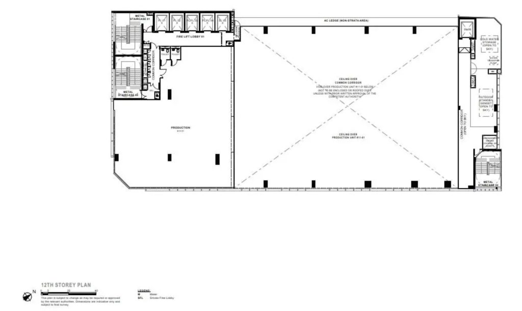
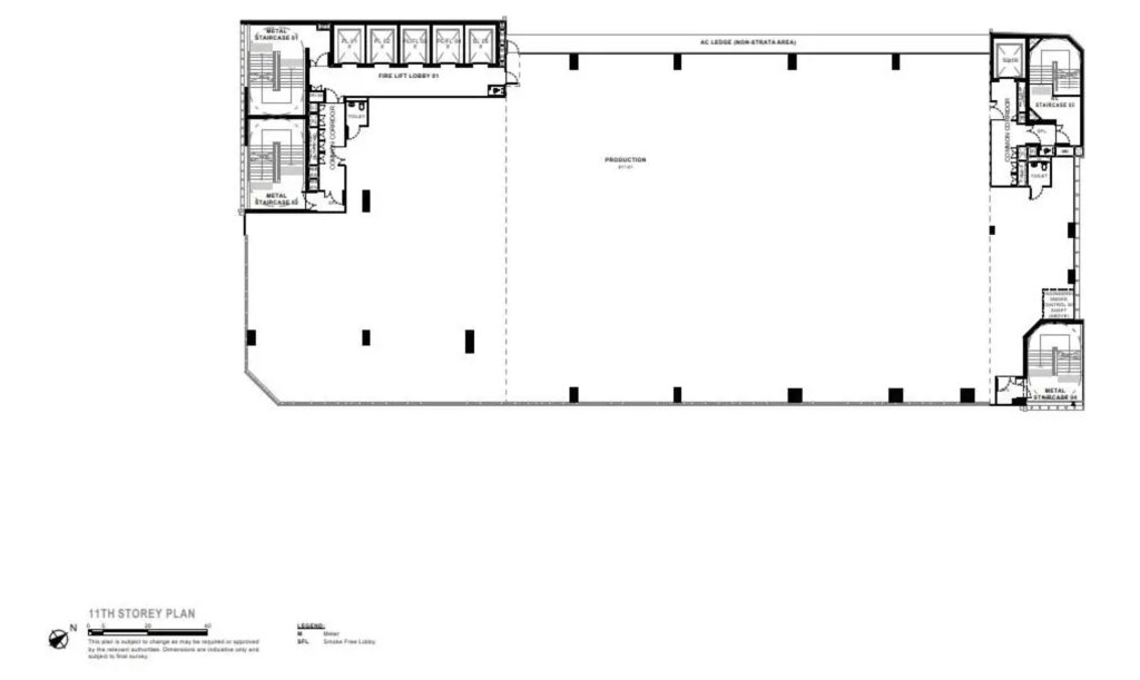
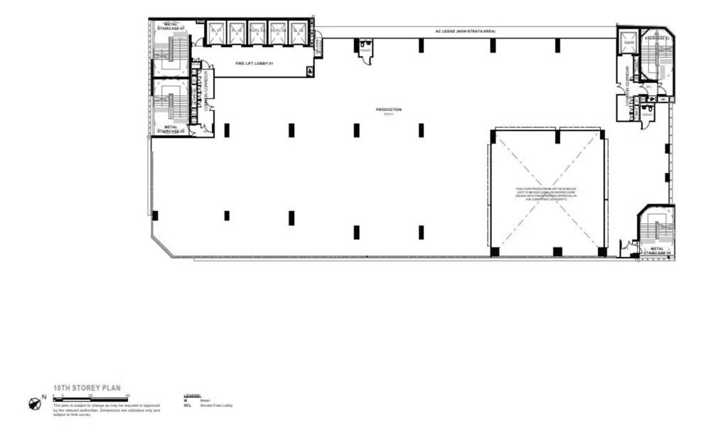
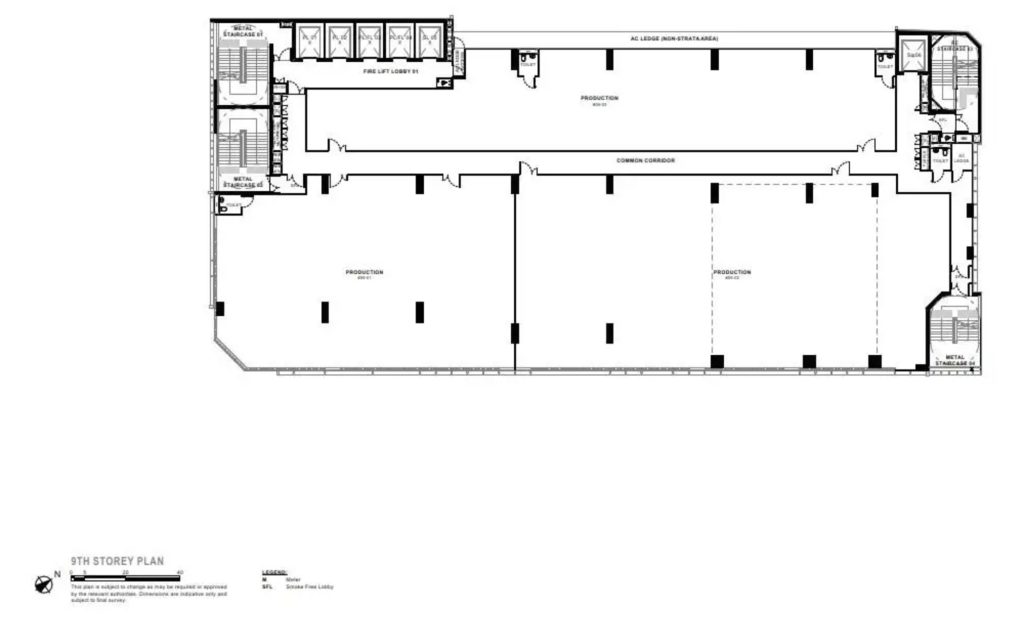
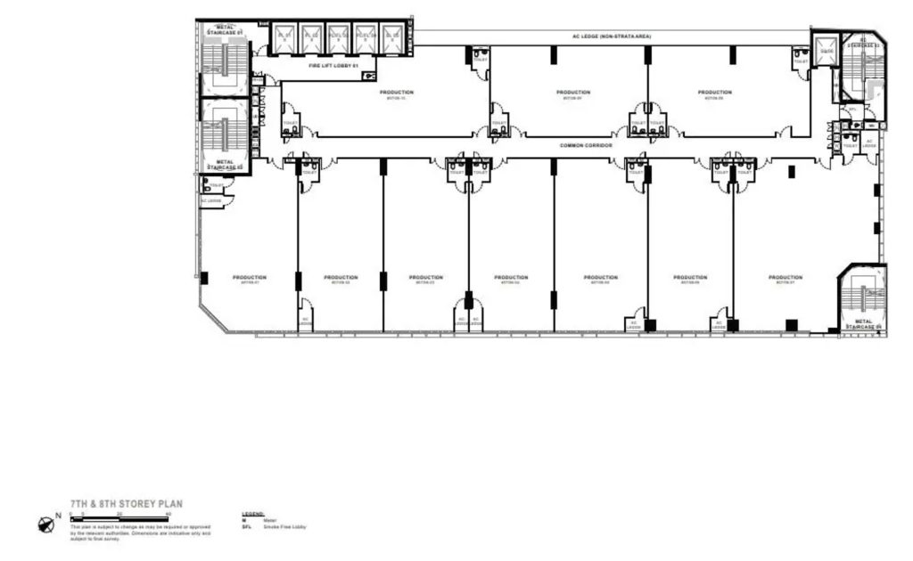
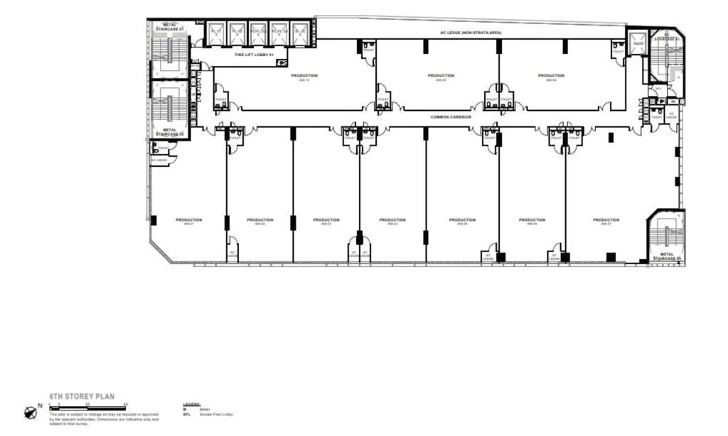
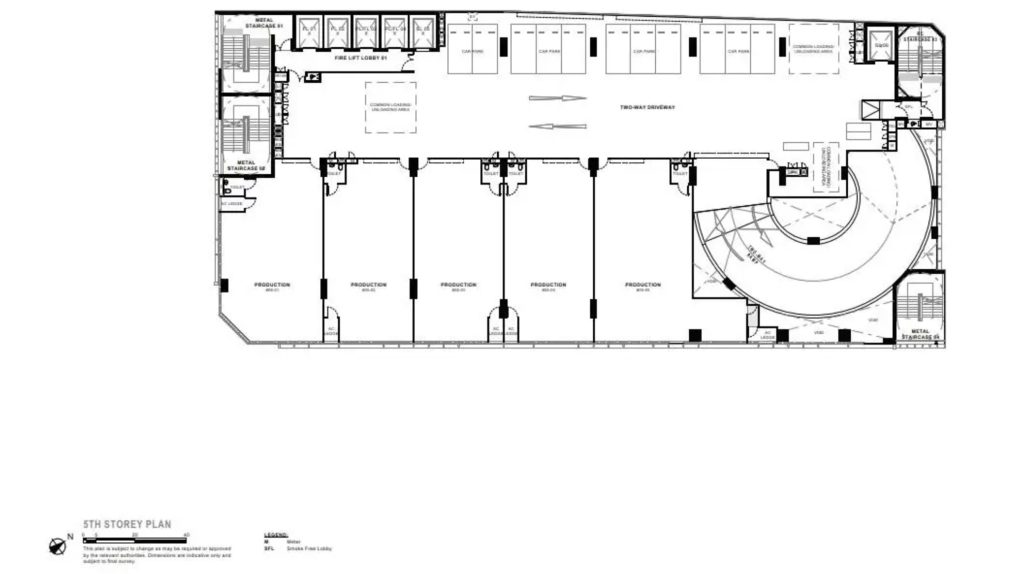
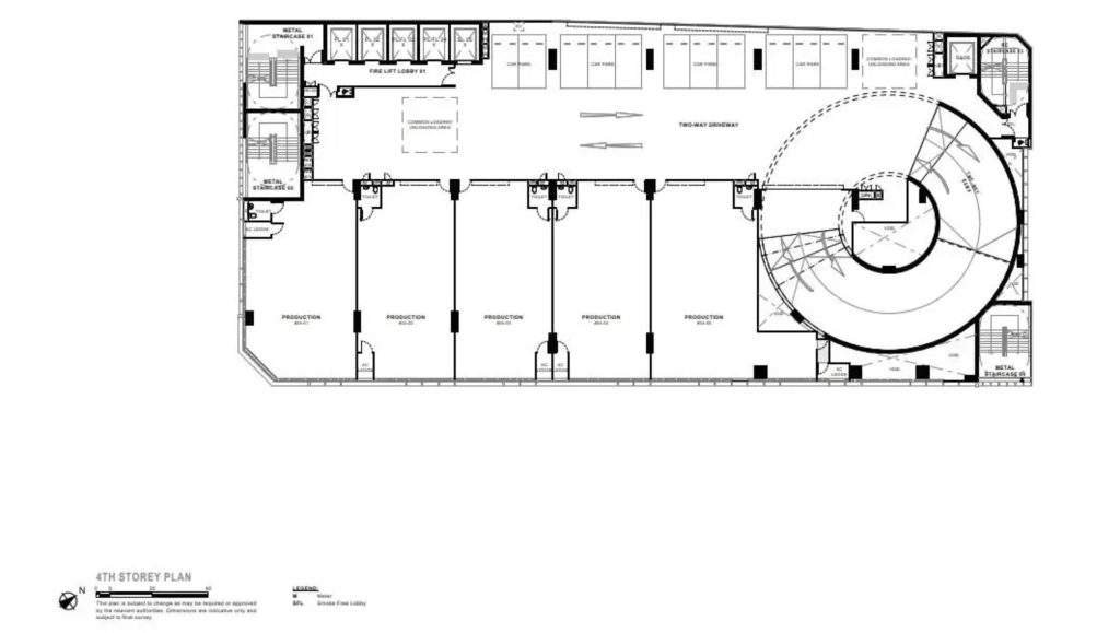
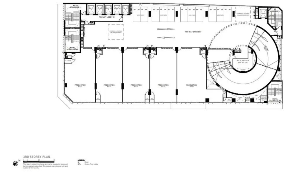
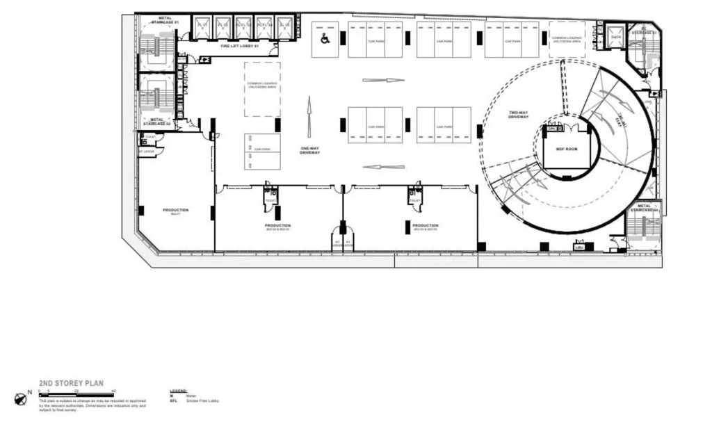
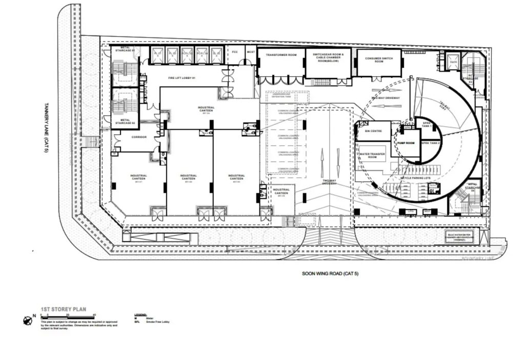
Site Layout & Floor Plans
Site Plan | Design Concept | Units Layout
The design concept of Generations@Tannery fuses extreme durability and modern innovation. The exterior aesthetics elegantly showcase a robust design that signifies prime industrial strength. The unit layouts are optimized for efficiency, featuring spacious production areas with direct ramp-up access, allowing businesses to maximize daily operations.
Site Plan














Download Resources
eBrochure | Floor Plan
Download the official project brochure and floor plans delivered straight to your inbox.

📥 Official Project Brochure & Floor Plan
Complete project details, floor plans, and pricing information

Proudly Developed By
The Developer behind Generations@Tannery brings a highly distinguished and rich history in premium real estate solutions. With a robust portfolio supported by years of profound expertise, their commitment to modern industrial infrastructure is evident. This vision consistently focuses on delivering highly functional spaces for Singapore’s dynamic business and production sectors.

