CT Pemimpin is a freehold B1 industrial development, offering excellent accessibility in a highly sought-after district for business growth. Its prime location enhances innovation, boosts productivity, and drives success.
Rare Freehold B1 Industrial in District 20
Generation to Generations (Freehold)
5mins Walk to Marymount MRT
No ABSD; Up to 90% Financing
High Ceiling for Office Usage
“Rare city modern industrial”
Total Units
Est. Completion

Project Overview
District 20, Marymount | 59 Units | Site 3,957.42 sqm
Discover CT Pemimpin: A Landmark Industrial Development
CT Pemimpin stands as a new and innovative freehold B1 industrial development located at 43 Jalan Pemimpin, in District 20 of Singapore. Offering a nine-storey ramp-up design, this development comprises 56 adaptable production units and three canteens.
The project is meticulously crafted to accommodate a diverse range of businesses, from logistics to e-commerce and technology firms. With its proximity to Marymount MRT station and excellent connectivity to major expressways, CT Pemimpin presents unparalleled access for business operations.
A Prime Investment Opportunity
As a rare freehold industrial property, CT Pemimpin offers long-term value, stability, and investment potential. It is an attractive choice for both business owners and investors looking to secure a premium location in Singapore’s thriving industrial landscape.




Key Development Info
CT Pemimpin is a rare freehold B1 industrial development in District 20, offering excellent accessibility and connectivity. With its strategic location near Marymount MRT and major expressways, it presents a valuable investment opportunity for business owners and investors.
43 Jalan Pemimpin Singapore 577192
Address
59 Units (56 Production + 3 Canteens)
Total Units
Freehold
Tenure
2029
Estimated TOP
Approx 3,957.42 sqm/ 42,597 sqft
Site Area
59 Lots
Carpark Lots

Location & Connectivity
Shopping | Dining | Schools | Transport | What’s Nearby
CT Pemimpin enjoys a strategic and highly convenient location at 43 Jalan Pemimpin, within the vibrant District 20 of Singapore. The development is just a five-minute walk from Marymount MRT station on the Circle Line, offering easy access to various parts of Singapore. Additionally, Bishan MRT and Upper Thomson MRT are nearby, providing even more transit options. Major expressways such as the Central Expressway (CTE) and Pan Island Expressway (PIE) ensure smooth connectivity for drivers.


What’s Nearby?
🛍️ Shopping & Recreation
- Junction 8 Shopping Centre – 0.75 km
- Giant (Thomson Imperial Court) – 0.69 km
- Bishan North Shopping Mall – 0.93 km
🎓 Education & Schools
- Catholic High School – 0.59 km
- Raffles Institution – 0.67 km
- Guangyang Primary School – 0.97 km
🚆 Connectivity
- Marymount MRT (CC16) – 5 min walk
- Bishan MRT (CC15, NS17) – 13 min walk
- Central Expressway (CTE)

Project Highlights
District 20 | Freehold | Connectivity | Modern Amenities
🏆 District 20 – Marymount
A strategic and highly convenient location in one of Singapore’s most sought-after districts for business growth.
🏢 Freehold B1 Industrial
Rare freehold status for long-term ownership and investment value in Singapore’s industrial market.
🚆 Excellent Connectivity
Five-minute walk to Marymount MRT and easy access to CTE and PIE expressways.
🏗️ Fully Ramp-Up Design
Spacious ramp-up access for easy logistics and operational flow with ample parking spaces.
🤝 By Chiu Teng Group
Developed by a trusted and respected property developer and builder in Singapore since the 1990s.
📏 5-7m High Ceiling
Customizable spaces with high ceilings for diverse business uses and flexible configurations.
🏢 Ancillary Office Usage
Suitable for businesses needing office spaces within an industrial property.
💰 No ABSD for Foreigners
Foreigners eligible to purchase units without incurring Additional Buyer’s Stamp Duty.
♻️ Sustainable Design
Energy-efficient designs, 24-hour security, and user-friendly facilities throughout.

Experience CT Pemimpin
Building Design | Facilities | Interiors
The exterior design boasts a sleek and modern industrial aesthetic, combining form and function. The building’s contemporary facade and expansive windows allow for natural light to flow into the units, creating a vibrant and productive work environment.
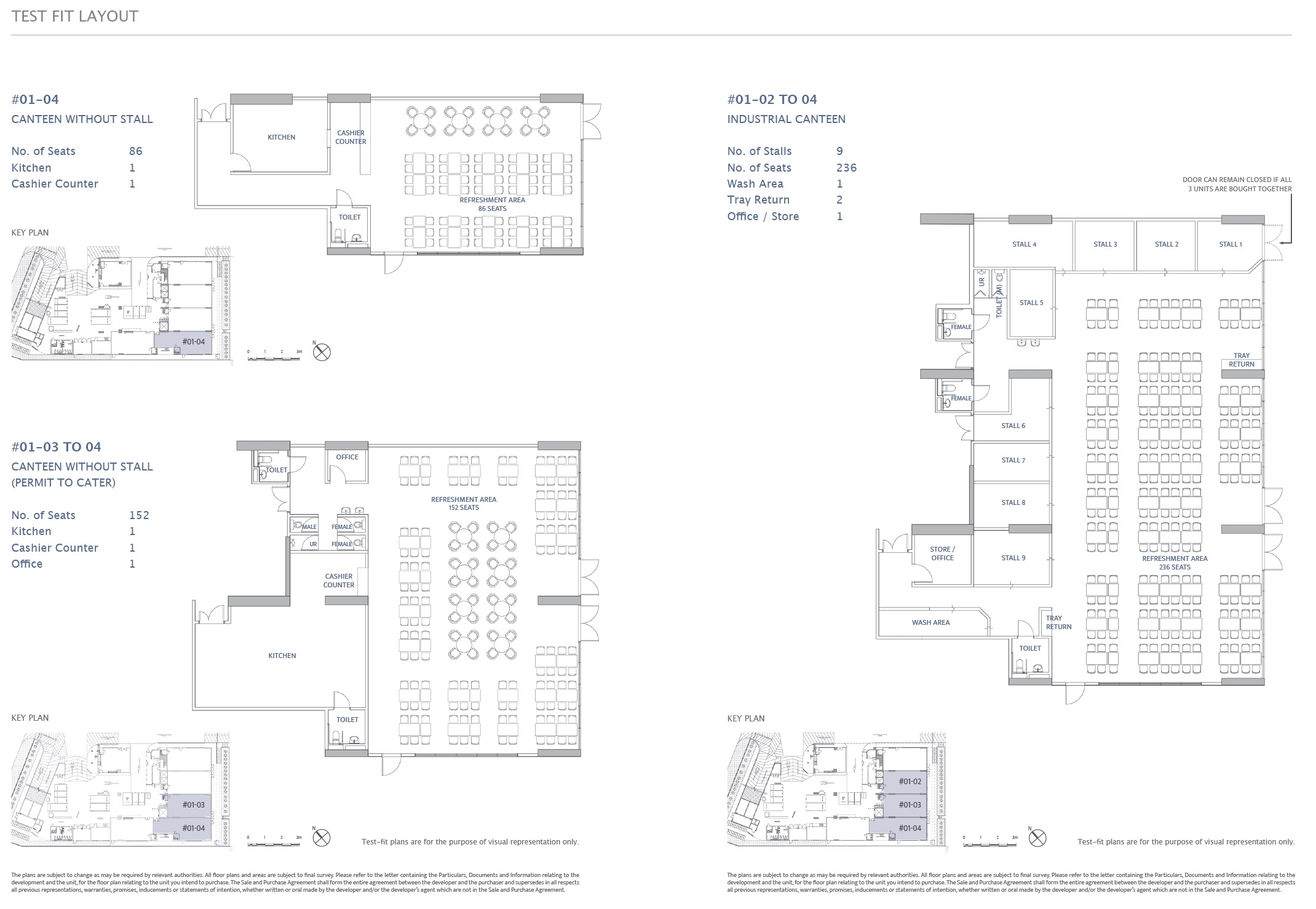
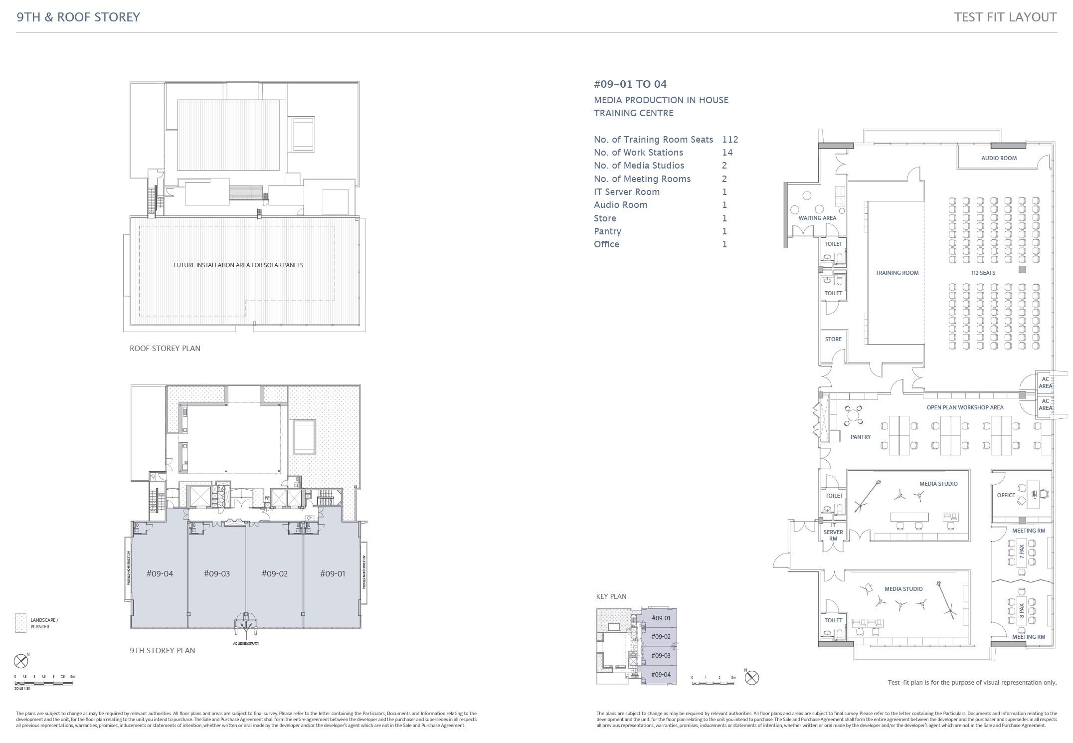
The development features 56 exclusive industrial units with high floor-to-floor heights of up to 7.35 meters, ramp-up vehicular access to five storeys, and well-thought-out amenities, including two rooftop pavilions and three spacious industrial canteens.









Pricing & Exclusive Offers
Last Unit Price | Developer Discount | 0% Commission
Last Unit – Canteen 1690sf at S$4,980,000
*Price is indicative and subject to changes.
It is important to only engage the Official Direct Developer Sales Team to assist you to enjoy the best possible direct developer price. There is no commission required to be paid.

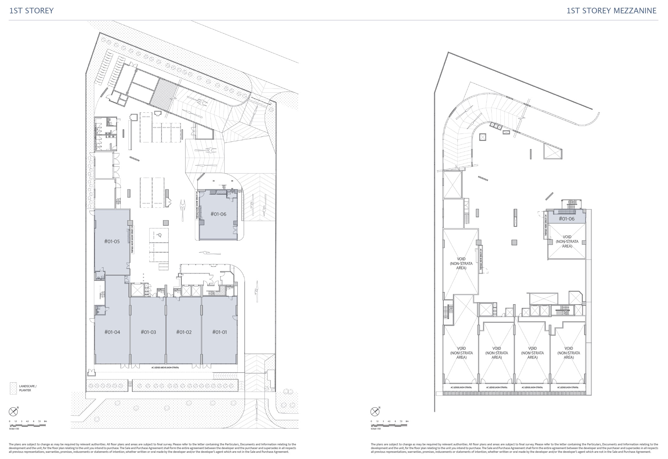
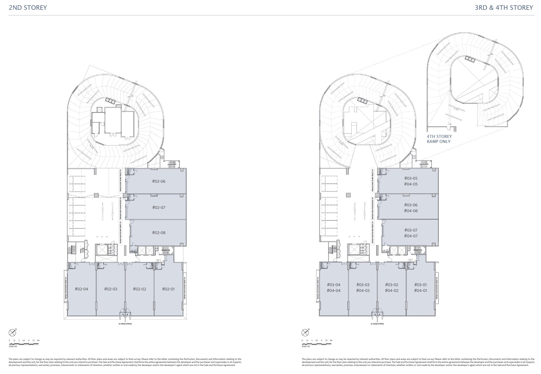
Site Layout & Floor Plans
Site Plan | Floor Plans | Unit Layouts
CT Pemimpin is thoughtfully designed to provide a conducive and efficient work environment. The site plan features spacious ramp-up access for easy logistics and operational flow. The development includes ample parking spaces, loading bays, and high-specification production units to accommodate a wide range of business activities. Internally, the units are designed with high ceilings and flexible layouts to support diverse operational needs.
Site Plan









Unit Information
High Ceiling 5 to 7 meters | Ramp-up vehicular access to five storeys | Each unit equipped with its own attached toilet
Production Units
56 Units
High Ceiling: 5-7 meters
Floor-to-floor height: Up to 7.35m
Each unit with attached toilet
Ramp-up access


Canteens
3 Canteens
Convenient dining options
For employees and visitors
Strategically located


Facilities
Amenities
59 Carpark lots
2 Rooftop Pavilions
24-hour Security
Energy-efficient lighting


CT Pemimpin Floor Plan

Download Resources
eBrochure | Floor Plan
Get the official project brochure and floor plans delivered straight to your inbox.

📥 Official Project Brochure & Floor Plan
Complete project details, floor plans, and pricing information

Proudly Developed By

Founded in the 1990s, Chiu Teng Group has established itself as a trusted and respected property developer and builder in Singapore. The group is renowned for delivering high-quality industrial, commercial, and residential properties, making them a preferred name in the local real estate market. With a strong emphasis on innovation, thoughtful design, and construction quality, Chiu Teng Group prioritizes sustainability and versatility in its developments, offering designs that meet the needs of diverse businesses.


